Details
Flat 6, Palmerston House, Hambrough Road, Ventnor
£280,000
(Sold Subject To Contract)
Description
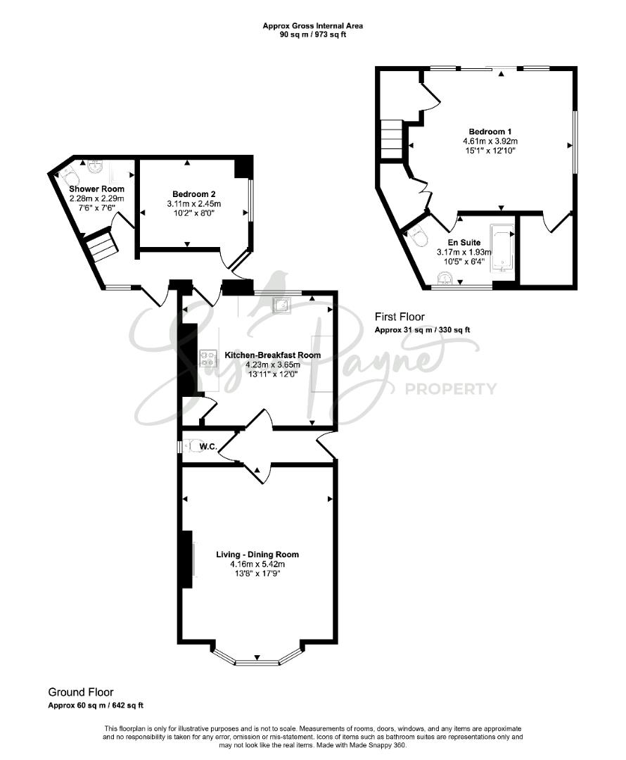
Commanding stunning sea views, this stunning ground-floor apartment boasts spacious and naturally light accommodation with two double bedrooms, two bathrooms, and a large garden to the rear.
Occupying a fantastic position just moments from the seafront in Ventnor, this wonderful apartment benefits from a duplex-style layout, with the majority of the accommodation on the ground level and the main bedroom suite and garden located on the first floor. The apartment is accessed via a tidy communal entrance, which leads up to the front door of the apartment. An entrance hall offers access to the living-dining room, the ground-floor WC, and the kitchen-breakfast room, which leads through to the rear hall. With two steps up from the kitchen, the rear hall leads to bedroom two, the ground-floor shower room, and to the stairwell to the first floor. The rear hall also provides access to a courtyard and the bin storage area, plus there is a stairwell from here to the garden. The first floor enjoys a large double bedroom with an en-suite and a walk-in wardrobe, plus there is access to the garden. Benefitting from a large garden to the rear, planted with several shrubs and trees, this private garden enjoys the sunshine for most of the day and offers a fantastic opportunity for a keen gardener or for those with children or pets. This apartment would make an ideal holiday let, second home, or bolthole.
Perched in an elevated position above the Ventnor fishing harbour, the truly breathtaking coastal location of Palmerston House cannot be beaten, with a glorious golden beach, magnificent coastal walks, and the bustling town centre located on the doorstep. The apartment is perfectly positioned to enjoy the seafront cafes, pubs, and restaurants, including the world-famous Spyglass Inn with dining terraces overlooking the English Channel, The Hamborough, a highly regarded restaurant just a stone’s throw from Palmerston House serving a modern British menu created by a multi-award-winning Executive Chef. Ventnor town centre provides a range of boutique shops, fine eateries and supermarkets, plus a regular bus service runs through to both Newport and Ryde. Renowned for its bustling arts scene, Ventnor is home to the Isle of Wight's multi-award-winning Ventnor Fringe Festival, which takes place every summer, and the Ventnor Botanical Gardens with over 23 acres of wide-open spaces containing rare, subtropical plants and trees which flourish in the unique microclimate enjoyed on the south coast of the Island.
Welcome to 6 Palmerston House
The characterful 1920s building is finished in a sunshine yellow and features a ramp up to a paved patio space to one side, and the communal front door is located here.
Communal Entrance
This well-maintained communal entrance benefits from wood-effect flooring which continues to the stairwell at the back of the hall. The door to apartment 6 is located just before the stairwell.
Entrance Hall
With space to store coats, shoes and sandy boots from long walks along the coast, this entrance hallleads to the living-dining room, ground-floor WC, and the kitchen-breakfast room.
Living - Dining Room
Boasting high ceilings and a bay window to the front aspect, making the most of the natural light and the stunning sea views, the room offers ample space to arrange living and dining furniture. With a characterful feature fireplace at the focal point of the room, the space is neutrally decorated and finished with a wood-effect laminate floor.
Ground Floor Cloakroom
Benefitting from a ground-floor position, this handy cloakroom features a WC and a handbasin unit as well as an obscure glazed window to the side.
Kitchen - Breakfast Room
Continuing the beautiful high ceilings, this spacious kitchen features a range of base and wall cabinets offering plenty of storage as well as integrated appliances, including a dishwasher, electric oven, gas hobs, and undercounter space for a fridge. There is ample space for a breakfast table, plus there is storage space in one corner. A large window to the rear aspect floods the space with natural light and provides a charming outlook of the rear courtyard.
Rear Hall
Two steps up from the kitchen, the rear hall benefits from a window to the front aspect as well as leading to further accommodation and the stairwell to the main bedroom. There is a door to the side leading to the courtyard and a door to the front aspect leading to bin storage and providing access to the stairwell to the garden.
Bedroom Two
With a window to the side aspect, this double bedroom is set up as a twin room and benefits from wood-effect flooring.
Shower Room
Featuring a shower cubicle with an electric shower, a vanity hand basin and a WC, this handy shower room benefits from a convenient position.
Bedroom One
Accessed via a stairwell from the rear hall, this stunning and generous double bedroom benefits from sliding doors to the garden as well as a walk-in wardrobe or storage space, and an en-suite bathroom. A transom window to the side aspect enjoys morning sunshine whilst offering privacy. There are built-in storage cupboards to one side.
En-Suite Bathroom
Fitted with a shower over bath, this spacious en-suite benefits from a window to the front aspect with glimpses of the sea and features a WC and pedestal hand basin.
Garden
Accessed from the main bedroom or the stairwell on the outside of the property, this fabulous garden is a hidden gem, offering plenty of nooks and seating areas to enjoy a peaceful garden oasis. Mostly laid to lawn with shrubs and trees dotted around, the garden enjoys sunshine for most of the day and benefits from a large decked terrace area, ideal for dining al fresco style.
Parking
There is unrestricted on-road parking available on Hamborough Road and surrounding roads.
6 Palmerston House offers a fantastic opportunity to acquire a stunning duplex apartment with stunning sea views and a large garden to the rear. A viewing is highly recommended with the sole agent, Susan Payne Property.
Additional Details
Tenure: Leasehold
Lease Term: 900 years from December 1995 (870 years remaining)
Charges: approx. £100pm
Council Tax: B (approx. £2,003.87 pa – Isle of Wight Council 2025/2026)
Services: Mains water, gas, drainage, and electricity
Agent Notes:
The information provided about this property does not constitute or form part of an offer or contract, nor may it be regarded as representations. All interested parties must verify accuracy and your solicitor must verify tenure/lease information, fixtures and fittings and, where the property has been extended/converted, planning/building regulation consents. All dimensions are approximate and quoted for guidance only and their accuracy cannot be confirmed. Reference to appliances and/or services does not imply that they are necessarily in working order or fit for the purpose. Susan Payne Property Ltd. Company no. 10753879.
Viewing
Please contact us on 01983 566244 if you wish to arrange a viewing appointment for this property, or require further information.
Energy Performance Certificate
Click here to view the Energy Efficiency Rating and Environmental Impact Rating for this property.
Disclaimer
Susan Payne Property endeavour to maintain accurate depictions of properties in Virtual Tours, Floor Plans and descriptions, however, these are intended only as a guide and purchasers must satisfy themselves by personal inspection.
Commanding stunning sea views, this stunning ground-floor apartment boasts spacious and naturally light accommodation with two double bedrooms, two bathrooms, and a large garden to the rear.
Occupying a fantastic position just moments from the seafront in Ventnor, this wonderful apartment benefits from a duplex-style layout, with the majority of the accommodation on the ground level and the main bedroom suite and garden located on the first floor. The apartment is accessed via a tidy communal entrance, which leads up to the front door of the apartment. An entrance hall offers access to the living-dining room, the ground-floor WC, and the kitchen-breakfast room, which leads through to the rear hall. With two steps up from the kitchen, the rear hall leads to bedroom two, the ground-floor shower room, and to the stairwell to the first floor. The rear hall also provides access to a courtyard and the bin storage area, plus there is a stairwell from here to the garden. The first floor enjoys a large double bedroom with an en-suite and a walk-in wardrobe, plus there is access to the garden. Benefitting from a large garden to the rear, planted with several shrubs and trees, this private garden enjoys the sunshine for most of the day and offers a fantastic opportunity for a keen gardener or for those with children or pets. This apartment would make an ideal holiday let, second home, or bolthole.
Perched in an elevated position above the Ventnor fishing harbour, the truly breathtaking coastal location of Palmerston House cannot be beaten, with a glorious golden beach, magnificent coastal walks, and the bustling town centre located on the doorstep. The apartment is perfectly positioned to enjoy the seafront cafes, pubs, and restaurants, including the world-famous Spyglass Inn with dining terraces overlooking the English Channel, The Hamborough, a highly regarded restaurant just a stone’s throw from Palmerston House serving a modern British menu created by a multi-award-winning Executive Chef. Ventnor town centre provides a range of boutique shops, fine eateries and supermarkets, plus a regular bus service runs through to both Newport and Ryde. Renowned for its bustling arts scene, Ventnor is home to the Isle of Wight's multi-award-winning Ventnor Fringe Festival, which takes place every summer, and the Ventnor Botanical Gardens with over 23 acres of wide-open spaces containing rare, subtropical plants and trees which flourish in the unique microclimate enjoyed on the south coast of the Island.
Welcome to 6 Palmerston House
The characterful 1920s building is finished in a sunshine yellow and features a ramp up to a paved patio space to one side, and the communal front door is located here.
Communal Entrance
This well-maintained communal entrance benefits from wood-effect flooring which continues to the stairwell at the back of the hall. The door to apartment 6 is located just before the stairwell.
Entrance Hall
With space to store coats, shoes and sandy boots from long walks along the coast, this entrance hallleads to the living-dining room, ground-floor WC, and the kitchen-breakfast room.
Living - Dining Room
Boasting high ceilings and a bay window to the front aspect, making the most of the natural light and the stunning sea views, the room offers ample space to arrange living and dining furniture. With a characterful feature fireplace at the focal point of the room, the space is neutrally decorated and finished with a wood-effect laminate floor.
Ground Floor Cloakroom
Benefitting from a ground-floor position, this handy cloakroom features a WC and a handbasin unit as well as an obscure glazed window to the side.
Kitchen - Breakfast Room
Continuing the beautiful high ceilings, this spacious kitchen features a range of base and wall cabinets offering plenty of storage as well as integrated appliances, including a dishwasher, electric oven, gas hobs, and undercounter space for a fridge. There is ample space for a breakfast table, plus there is storage space in one corner. A large window to the rear aspect floods the space with natural light and provides a charming outlook of the rear courtyard.
Rear Hall
Two steps up from the kitchen, the rear hall benefits from a window to the front aspect as well as leading to further accommodation and the stairwell to the main bedroom. There is a door to the side leading to the courtyard and a door to the front aspect leading to bin storage and providing access to the stairwell to the garden.
Bedroom Two
With a window to the side aspect, this double bedroom is set up as a twin room and benefits from wood-effect flooring.
Shower Room
Featuring a shower cubicle with an electric shower, a vanity hand basin and a WC, this handy shower room benefits from a convenient position.
Bedroom One
Accessed via a stairwell from the rear hall, this stunning and generous double bedroom benefits from sliding doors to the garden as well as a walk-in wardrobe or storage space, and an en-suite bathroom. A transom window to the side aspect enjoys morning sunshine whilst offering privacy. There are built-in storage cupboards to one side.
En-Suite Bathroom
Fitted with a shower over bath, this spacious en-suite benefits from a window to the front aspect with glimpses of the sea and features a WC and pedestal hand basin.
Garden
Accessed from the main bedroom or the stairwell on the outside of the property, this fabulous garden is a hidden gem, offering plenty of nooks and seating areas to enjoy a peaceful garden oasis. Mostly laid to lawn with shrubs and trees dotted around, the garden enjoys sunshine for most of the day and benefits from a large decked terrace area, ideal for dining al fresco style.
Parking
There is unrestricted on-road parking available on Hamborough Road and surrounding roads.
6 Palmerston House offers a fantastic opportunity to acquire a stunning duplex apartment with stunning sea views and a large garden to the rear. A viewing is highly recommended with the sole agent, Susan Payne Property.
Additional Details
Tenure: Leasehold
Lease Term: 900 years from December 1995 (870 years remaining)
Charges: approx. £100pm
Council Tax: B (approx. £2,003.87 pa – Isle of Wight Council 2025/2026)
Services: Mains water, gas, drainage, and electricity
Agent Notes:
The information provided about this property does not constitute or form part of an offer or contract, nor may it be regarded as representations. All interested parties must verify accuracy and your solicitor must verify tenure/lease information, fixtures and fittings and, where the property has been extended/converted, planning/building regulation consents. All dimensions are approximate and quoted for guidance only and their accuracy cannot be confirmed. Reference to appliances and/or services does not imply that they are necessarily in working order or fit for the purpose. Susan Payne Property Ltd. Company no. 10753879.
Viewing
Please contact us on 01983 566244 if you wish to arrange a viewing appointment for this property, or require further information.
Energy Performance Certificate
Click here to view the Energy Efficiency Rating and Environmental Impact Rating for this property.
Disclaimer
Susan Payne Property endeavour to maintain accurate depictions of properties in Virtual Tours, Floor Plans and descriptions, however, these are intended only as a guide and purchasers must satisfy themselves by personal inspection.
Features
- Stunning 1920’s duplex apartment
- Two double bedrooms and two bathrooms
- Characterful features throughout
- Naturally light and spacious
- Opportunity to put your own stamp on
- Large, private garden
- Panoramic sea views to the front
- Short walk to high street and seafront
- Amenities, restaurants and beach on the doorstep
- Offered for sale chain free
Share
Request aValuation
We understand that each of our vendors circumstances are as unique as the homes that we sell, which is why our bespoke, efficient, personal service, is always tailored to suit you and your individual requirements.

