Details
55, West Street, Ryde
£325,000
Description
Boasting spacious accommodation throughout, this fabulous three - four bedroom family home offers the new owners potential to make their own and benefits from a garden, driveway parking and a garage/workshop.
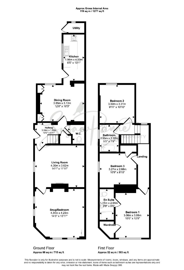
Spacious and boasting plenty of natural light, this fantastic family home is ready for a new lease of life and boasts an entrance hall leading to the ground-floor cloakroom, the living room, which leads through to the snug/bedroom, and to the dining room, which leads through to the kitchen. The stairwell from the entrance hall leads to the first floor, split level landing which provides access to three double bedrooms, one with an en-suite and the family bathroom. Outside, the garden is low-maintenance and offers a lovely spot to sit and relax in. The property also benefits from off-road parking and a garage/workshop to the rear.
This excellent location is just a 15-minute walk to the bustling Ryde seafront, which boasts long stretches of sandy beaches and numerous family activities such as ten-pin bowling, an open-air swimming pool, and play parks. With good local primary and secondary schools nearby, the High Street is only a 10-minute walk from 55 West Street, offering boutique shops, convenience stores, a superb choice of eateries, and even a local cinema. Another benefit of being so close to Ryde seafront is having easy access to high-speed foot passenger travel to the mainland with Wightlink’s catamaran service and the Hovercraft, which only takes 10 minutes to cross the Solent. Additionally, the Fishbourne to Portsmouth car ferry service is located within 3 miles of the property. Regular public transport connections across the island are also within easy reach, with Southern Vectis bus stops and the bus station nearby, as well as the Island Line train service within a short walking distance.
Welcome to 55 West Street
The attractive semi-detached property offers parking to the rear, accessed from a block-paved driveway to the side, and the front door is located on the side elevation.
Entrance Hall
Fitted with a wood-effect laminate flooring which continues through most of the ground floor, this lovely entrance hall provides access to the dining room, the living room, the ground floor cloakroom, and the stairwell to the first floor landing.
Cloakroom
Surprisingly spacious, this handy ground-floor cloakroom comprises a WC and a hand basin.
Dining Room
Benefitting from a window to the rear aspect, this spacious dining room offers storage cupboards on either side of the chimney breast, and there is a doorway to the kitchen.
Kitchen
Flooded with natural light from the window to the side aspect, this fabulous kitchen is fitted with modern base and wall cabinets with a wooden worktop, integrating appliances such as a dishwasher, electric oven, and rubbish bins, plus the worktop integrates a gas hob with an extractor fan over. There is space for an American-style fridge freezer plus a door to the rear garden.
Living Room
Spacious and featuring two arched windows on the side aspect, this family room continues the flooring and neutral décor and offers a characterful fire as the focal point of the room. A doorway leads into an additional reception room.
Snug/Bedroom
Offering versatility, this fantastic space could be utilised in a number of ways, including an additional living room, ground-floor bedroom, office, or gym. With two windows to the front aspect, the space features a gas fire and is neutrally decorated.
First Floor Landing
The carpeted stairwell leads to a split-level landing to the first-floor accommodation.
Bedroom One
Enjoying the morning sunshine from the large window to the front aspect, this double bedroom features a walk in wardrobe as well as an en-suite shower room.
En-Suite
Featuring a modern suite comprising a large shower cubicle, a pedestal hand basin, and a WC, the space is neutrally finished with wall tiles around the suite and is finished with an extractor fan.
Bedroom Three
Neutrally finished like most of the home, this lovely double bedroom benefits from a window to the side aspect and also features a built in cupboard.
Bedroom Two
Situated to the rear of the property with the space enjoying views over the garden to the rear.
Bathroom
Comprising a shower over bath, pedestal hand basin, and a WC, this neutral bathroom features an obscure glazed window to the side aspect.
Garden
Enjoying sunshine for most of the day, this low maintenance garden is mostly paved and benefits from a large decking area to one side. The garden offers an exciting opportunity for the new owners to relandscape, if desired. A gate leads to the driveway and garage/workshop located to the rear.
Parking
Located to the rear of the property, at the end of the garden, is the off-road parking area for the property, offering a hard standing for a vehicle. Additional unrestricted, on-road parking is available on West Street and surrounding roads.
Garage/Workshop
Offering fantastic storage space or workshop space, this outbuilding benefits from power and provides potential for various uses. Alternatively, the space could be utilised for additional driveway parking, if required.
55 West Street presents a fantastic opportunity to acquire a generous family home with potential for the new owners to personalise, offering a sunny rear garden and off-road parking. A viewing is highly recommended with the sole agent, Susan Payne Property.
Additional Details
Tenure: Leasehold |
Lease Term: 900 years from July 1871(764 years remaining) |
Ground Rent: £0 per annum |
Council Tax Band: B (approx. £1,984.62 pa – Isle of Wight Council 2025/2026) |
Services: Mains water, drainage, electricity, and gas
Agent Notes:
The information provided about this property does not constitute or form part of an offer or contract, nor may it be regarded as representations. All interested parties must verify accuracy and your solicitor must verify tenure/lease information, fixtures and fittings and, where the property has been extended/converted, planning/building regulation consents. All dimensions are approximate and quoted for guidance only and their accuracy cannot be confirmed. Reference to appliances and/or services does not imply that they are necessarily in working order or fit for the purpose. Susan Payne Property Ltd. Company no. 10753879.
Viewing
Please contact us on 01983 566244 if you wish to arrange a viewing appointment for this property, or require further information.
Energy Performance Certificate
Click here to view the Energy Efficiency Rating and Environmental Impact Rating for this property.
Disclaimer
Susan Payne Property endeavour to maintain accurate depictions of properties in Virtual Tours, Floor Plans and descriptions, however, these are intended only as a guide and purchasers must satisfy themselves by personal inspection.
Boasting spacious accommodation throughout, this fabulous three - four bedroom family home offers the new owners potential to make their own and benefits from a garden, driveway parking and a garage/workshop.
Spacious and boasting plenty of natural light, this fantastic family home is ready for a new lease of life and boasts an entrance hall leading to the ground-floor cloakroom, the living room, which leads through to the snug/bedroom, and to the dining room, which leads through to the kitchen. The stairwell from the entrance hall leads to the first floor, split level landing which provides access to three double bedrooms, one with an en-suite and the family bathroom. Outside, the garden is low-maintenance and offers a lovely spot to sit and relax in. The property also benefits from off-road parking and a garage/workshop to the rear.
This excellent location is just a 15-minute walk to the bustling Ryde seafront, which boasts long stretches of sandy beaches and numerous family activities such as ten-pin bowling, an open-air swimming pool, and play parks. With good local primary and secondary schools nearby, the High Street is only a 10-minute walk from 55 West Street, offering boutique shops, convenience stores, a superb choice of eateries, and even a local cinema. Another benefit of being so close to Ryde seafront is having easy access to high-speed foot passenger travel to the mainland with Wightlink’s catamaran service and the Hovercraft, which only takes 10 minutes to cross the Solent. Additionally, the Fishbourne to Portsmouth car ferry service is located within 3 miles of the property. Regular public transport connections across the island are also within easy reach, with Southern Vectis bus stops and the bus station nearby, as well as the Island Line train service within a short walking distance.
Welcome to 55 West Street
The attractive semi-detached property offers parking to the rear, accessed from a block-paved driveway to the side, and the front door is located on the side elevation.
Entrance Hall
Fitted with a wood-effect laminate flooring which continues through most of the ground floor, this lovely entrance hall provides access to the dining room, the living room, the ground floor cloakroom, and the stairwell to the first floor landing.
Cloakroom
Surprisingly spacious, this handy ground-floor cloakroom comprises a WC and a hand basin.
Dining Room
Benefitting from a window to the rear aspect, this spacious dining room offers storage cupboards on either side of the chimney breast, and there is a doorway to the kitchen.
Kitchen
Flooded with natural light from the window to the side aspect, this fabulous kitchen is fitted with modern base and wall cabinets with a wooden worktop, integrating appliances such as a dishwasher, electric oven, and rubbish bins, plus the worktop integrates a gas hob with an extractor fan over. There is space for an American-style fridge freezer plus a door to the rear garden.
Living Room
Spacious and featuring two arched windows on the side aspect, this family room continues the flooring and neutral décor and offers a characterful fire as the focal point of the room. A doorway leads into an additional reception room.
Snug/Bedroom
Offering versatility, this fantastic space could be utilised in a number of ways, including an additional living room, ground-floor bedroom, office, or gym. With two windows to the front aspect, the space features a gas fire and is neutrally decorated.
First Floor Landing
The carpeted stairwell leads to a split-level landing to the first-floor accommodation.
Bedroom One
Enjoying the morning sunshine from the large window to the front aspect, this double bedroom features a walk in wardrobe as well as an en-suite shower room.
En-Suite
Featuring a modern suite comprising a large shower cubicle, a pedestal hand basin, and a WC, the space is neutrally finished with wall tiles around the suite and is finished with an extractor fan.
Bedroom Three
Neutrally finished like most of the home, this lovely double bedroom benefits from a window to the side aspect and also features a built in cupboard.
Bedroom Two
Situated to the rear of the property with the space enjoying views over the garden to the rear.
Bathroom
Comprising a shower over bath, pedestal hand basin, and a WC, this neutral bathroom features an obscure glazed window to the side aspect.
Garden
Enjoying sunshine for most of the day, this low maintenance garden is mostly paved and benefits from a large decking area to one side. The garden offers an exciting opportunity for the new owners to relandscape, if desired. A gate leads to the driveway and garage/workshop located to the rear.
Parking
Located to the rear of the property, at the end of the garden, is the off-road parking area for the property, offering a hard standing for a vehicle. Additional unrestricted, on-road parking is available on West Street and surrounding roads.
Garage/Workshop
Offering fantastic storage space or workshop space, this outbuilding benefits from power and provides potential for various uses. Alternatively, the space could be utilised for additional driveway parking, if required.
55 West Street presents a fantastic opportunity to acquire a generous family home with potential for the new owners to personalise, offering a sunny rear garden and off-road parking. A viewing is highly recommended with the sole agent, Susan Payne Property.
Additional Details
Tenure: Leasehold |
Lease Term: 900 years from July 1871(764 years remaining) |
Ground Rent: £0 per annum |
Council Tax Band: B (approx. £1,984.62 pa – Isle of Wight Council 2025/2026) |
Services: Mains water, drainage, electricity, and gas
Agent Notes:
The information provided about this property does not constitute or form part of an offer or contract, nor may it be regarded as representations. All interested parties must verify accuracy and your solicitor must verify tenure/lease information, fixtures and fittings and, where the property has been extended/converted, planning/building regulation consents. All dimensions are approximate and quoted for guidance only and their accuracy cannot be confirmed. Reference to appliances and/or services does not imply that they are necessarily in working order or fit for the purpose. Susan Payne Property Ltd. Company no. 10753879.
Viewing
Please contact us on 01983 566244 if you wish to arrange a viewing appointment for this property, or require further information.
Energy Performance Certificate
Click here to view the Energy Efficiency Rating and Environmental Impact Rating for this property.
Disclaimer
Susan Payne Property endeavour to maintain accurate depictions of properties in Virtual Tours, Floor Plans and descriptions, however, these are intended only as a guide and purchasers must satisfy themselves by personal inspection.
Features
- Characterful semi-detached family home
- Three to four double bedrooms
- Opportunity to put your own stamp on
- Convenient location for high street amenities
- Off-road parking and workshop
- Two bathrooms and a separate cloakroom
- Versatile accommodation with three reception rooms
- Amenities, schools and travel links close by
- Beautiful sandy beaches within walking distance
- Offered for sale chain-free
Share
Request aValuation
We understand that each of our vendors circumstances are as unique as the homes that we sell, which is why our bespoke, efficient, personal service, is always tailored to suit you and your individual requirements.

