Details
10, Sovereign Way, Ryde
£485,000
Description
Situated within a sought-after area on the outskirts of Ryde, this fabulous four-bedroom family home offers spacious and naturally light interiors and benefits from a sunny rear garden, driveway parking and a garage.
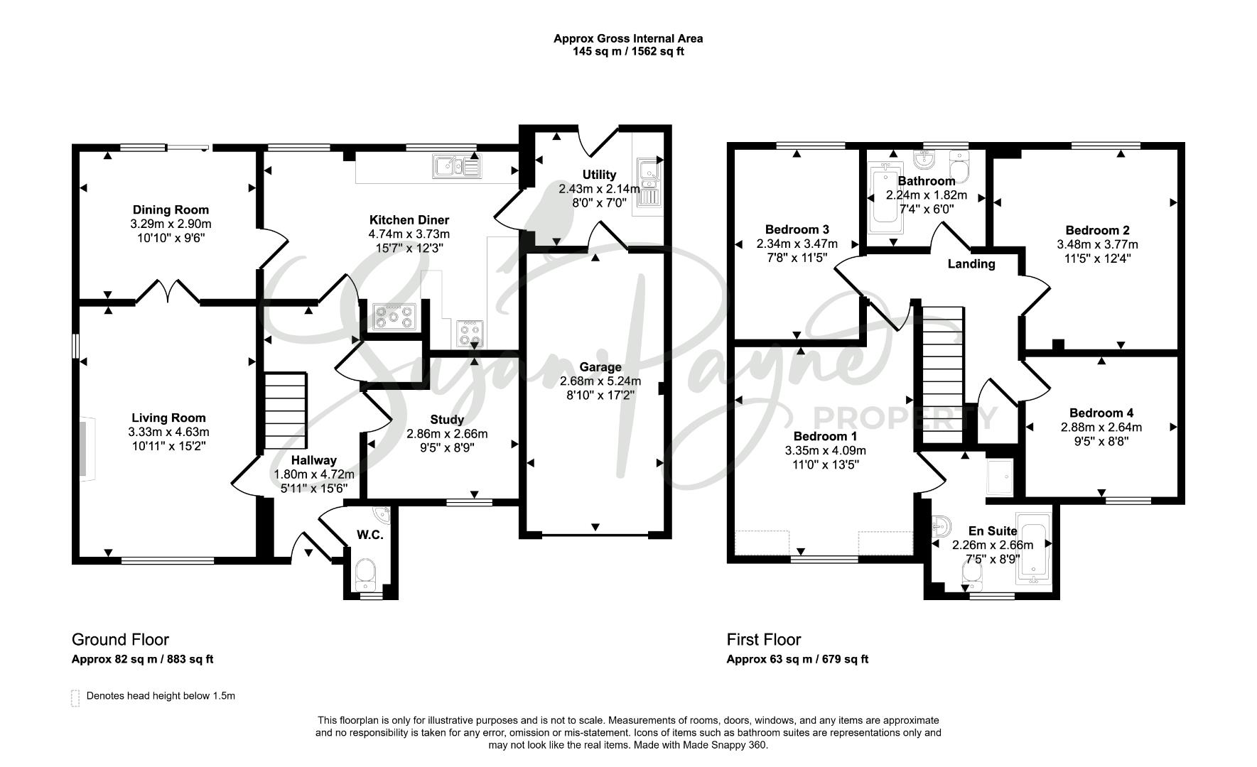
Built in the late 1990’s this spacious family home has been well maintained and updated over the years, with the kitchen and double glazing updated most recently. The accommodation comprises an entrance hall leading to the ground floor cloakroom, study, living room, and kitchen-diner. From the kitchen-diner, there is access to the dining room and utility room, which benefits from an internal door to the garage. The stairwell from the entrance hall leads up to the first-floor landing and to four bedrooms (one with an en-suite) and the family bathroom. Outside, the property benefits from a sunny rear garden that features a large patio, ideal for entertaining. To the front of the property, there is driveway parking as well as access to the garage, and a delightful, grassed frontage.
Situated in a desirable residential area of Ryde, this home is perfectly located to enjoy Ryde's eclectic mix of cafes and independent shops that abound in the town. There are also good local schools nearby as well as the independent Ryde School, all within easy walking distance. Ryde is renowned for its miles of sandy beaches and the many
amenities found on the seafront which are also just a short walk away, including high-speed mainland ferry travel and island transport links. Additionally, the Fishbourne to Portsmouth car ferry service is located within 3 miles from the property. For those who enjoy the great outdoors, the house also benefits from being very close to a range of country walks in Ashey and Haylands, as well as being within easy striking distance of the Millennium Green in nearby Play Lane.
Welcome to 10 Sovereign Way
Tucked away within a peaceful close, this wonderful family home enjoys a characterful exterior façade with mock Tudor detailing to the front aspect. A path leads up to the front door, which is sheltered by an open porch.
Entrance Hall
Finished with fresh, neutral décor, this wonderful entrance hall is finished with a wood-effect laminate flooring which continues into the kitchen-diner and utility room, plus it offers ample understairs storage as well as a large cloak cupboard, perfect for storing coats, shoes and muddy boots.
Cloakroom
An essential for any family home, the cloakroom features an obscure glazed window to the front aspect and comprises a WC and a wall-mounted hand basin. The electrical consumer unit is located here.
Study
Currently utilised as an office, this space benefits from a window to the front aspect and could be used in several ways, including a ground-floor bedroom, craft room, or studio.
Living Room
Enjoying ample space for the whole family, the room enjoys a wonderful gas feature fire which creates a cosy atmosphere, particularly during the cooler, winter months. Benefitting from dual aspect windows to the front and side, the space also opens into the dining room with large doors, offering the new owners an extension to the living room, or could be separated into two rooms to keep it cosy.
Dining Room
Utilised as an additional sitting room and benefitting from a sliding door to the garden, this space offers versatility to be utilised in a number of ways, including as a playroom, dining room, or office. There is a door to the kitchen from here.
Kitchen-Diner
Benefitting from modern base and wall cabinets with a stone effect worktop, the cabinets offer ample storage space as well as space for under-counter appliances, including plumbing for a dishwasher. With space for a freestanding electric cooker, the kitchen also benefits from a gas-fired ‘AGA’ which not only keeps the room cosy, but is a wonderful focal point of the room. With space for a dining table, the room enjoys views over the rear garden through two windows, the space also leads into the utility room.
Utility Room
Offering matching cabinets and worktops from the kitchen, this handy utility room benefits from undercounter space and plumbing for a washing machine, plus there is end-of-counter space for a fridge freezer, and the gas boiler is located here. The space is warmed by a large heated towel rail, and a door opens into the garage.
First Floor Landing
Spacious and naturally light, the carpeted landing space leads to the first-floor accommodation and offers access to a large airing cupboard and the loft hatch is located here.
Bedroom One
Generously proportioned, this double bedroom offers a window to the front aspect and ample space for bedroom furniture. There is access to the en-suite from here.
En-Suite
Fully equipped with a bath, a separate shower, a WC, and a hand basin, this en-suite features a window to the front aspect and also offers potential for the new owners to put their stamp on.
Bedroom Two
Enjoying the morning sunshine from the window to the rear aspect, this generous double bedroom is carpeted and continues the neutral décor.
Bedroom Three
Currently set up as a dressing room, this double bedroom enjoys natural light from the window to the rear aspect.
Bedroom Four
Continuing the flooring and décor from the other bedrooms, this bedroom features a window to the front aspect.
Garden
Fully enclosed with a red brick wall, this delightful garden is mostly laid to lawn and offers potential for landscaping to new owners’ specifications, if desired. A large patio space creates the ideal spot for a morning coffee or a spot of outdoor dining, which is surrounded by a mid-level wall with potential for planting within.
Garage
Offering storage space as well as parking for a car, this fantastic garage space offers potential for storage within the rafters above the garage. This space offers versatility and could be utilised in many ways, depending on the new owner’s specifications.
Parking
The property offers off-road parking for two vehicles. Additionally, there is unrestricted on-road parking available in Sovereign Way and the surrounding roads.
10 Sovereign Way presents a fantastic opportunity to acquire a spacious family home, set within a highly convenient location offering a sunny garden and driveway parking. A viewing is highly recommended with the sole agent, Susan Payne Property.
Additional Details
Tenure: Freehold
Council Tax Band: E (approx. £3,118.68 pa – Isle of Wight Council 2025/2026)
Services: Mains water, drainage, gas, and electricity
Agent Notes:
The information provided about this property does not constitute or form part of an offer or contract, nor may it be regarded as representations. All interested parties must verify accuracy and your solicitor must verify tenure/lease information, fixtures and fittings and, where the property has been extended/converted, planning/building regulation consents. All dimensions are approximate and quoted for guidance only and their accuracy cannot be confirmed. Reference to appliances and/or services does not imply that they are necessarily in working order or fit for the purpose. Susan Payne Property Ltd. Company no. 10753879.
Viewing
Please contact us on 01983 566244 if you wish to arrange a viewing appointment for this property, or require further information.
Energy Performance Certificate
Click here to view the Energy Efficiency Rating and Environmental Impact Rating for this property.
Disclaimer
Susan Payne Property endeavour to maintain accurate depictions of properties in Virtual Tours, Floor Plans and descriptions, however, these are intended only as a guide and purchasers must satisfy themselves by personal inspection.
Situated within a sought-after area on the outskirts of Ryde, this fabulous four-bedroom family home offers spacious and naturally light interiors and benefits from a sunny rear garden, driveway parking and a garage.
Built in the late 1990’s this spacious family home has been well maintained and updated over the years, with the kitchen and double glazing updated most recently. The accommodation comprises an entrance hall leading to the ground floor cloakroom, study, living room, and kitchen-diner. From the kitchen-diner, there is access to the dining room and utility room, which benefits from an internal door to the garage. The stairwell from the entrance hall leads up to the first-floor landing and to four bedrooms (one with an en-suite) and the family bathroom. Outside, the property benefits from a sunny rear garden that features a large patio, ideal for entertaining. To the front of the property, there is driveway parking as well as access to the garage, and a delightful, grassed frontage.
Situated in a desirable residential area of Ryde, this home is perfectly located to enjoy Ryde's eclectic mix of cafes and independent shops that abound in the town. There are also good local schools nearby as well as the independent Ryde School, all within easy walking distance. Ryde is renowned for its miles of sandy beaches and the many
amenities found on the seafront which are also just a short walk away, including high-speed mainland ferry travel and island transport links. Additionally, the Fishbourne to Portsmouth car ferry service is located within 3 miles from the property. For those who enjoy the great outdoors, the house also benefits from being very close to a range of country walks in Ashey and Haylands, as well as being within easy striking distance of the Millennium Green in nearby Play Lane.
Welcome to 10 Sovereign Way
Tucked away within a peaceful close, this wonderful family home enjoys a characterful exterior façade with mock Tudor detailing to the front aspect. A path leads up to the front door, which is sheltered by an open porch.
Entrance Hall
Finished with fresh, neutral décor, this wonderful entrance hall is finished with a wood-effect laminate flooring which continues into the kitchen-diner and utility room, plus it offers ample understairs storage as well as a large cloak cupboard, perfect for storing coats, shoes and muddy boots.
Cloakroom
An essential for any family home, the cloakroom features an obscure glazed window to the front aspect and comprises a WC and a wall-mounted hand basin. The electrical consumer unit is located here.
Study
Currently utilised as an office, this space benefits from a window to the front aspect and could be used in several ways, including a ground-floor bedroom, craft room, or studio.
Living Room
Enjoying ample space for the whole family, the room enjoys a wonderful gas feature fire which creates a cosy atmosphere, particularly during the cooler, winter months. Benefitting from dual aspect windows to the front and side, the space also opens into the dining room with large doors, offering the new owners an extension to the living room, or could be separated into two rooms to keep it cosy.
Dining Room
Utilised as an additional sitting room and benefitting from a sliding door to the garden, this space offers versatility to be utilised in a number of ways, including as a playroom, dining room, or office. There is a door to the kitchen from here.
Kitchen-Diner
Benefitting from modern base and wall cabinets with a stone effect worktop, the cabinets offer ample storage space as well as space for under-counter appliances, including plumbing for a dishwasher. With space for a freestanding electric cooker, the kitchen also benefits from a gas-fired ‘AGA’ which not only keeps the room cosy, but is a wonderful focal point of the room. With space for a dining table, the room enjoys views over the rear garden through two windows, the space also leads into the utility room.
Utility Room
Offering matching cabinets and worktops from the kitchen, this handy utility room benefits from undercounter space and plumbing for a washing machine, plus there is end-of-counter space for a fridge freezer, and the gas boiler is located here. The space is warmed by a large heated towel rail, and a door opens into the garage.
First Floor Landing
Spacious and naturally light, the carpeted landing space leads to the first-floor accommodation and offers access to a large airing cupboard and the loft hatch is located here.
Bedroom One
Generously proportioned, this double bedroom offers a window to the front aspect and ample space for bedroom furniture. There is access to the en-suite from here.
En-Suite
Fully equipped with a bath, a separate shower, a WC, and a hand basin, this en-suite features a window to the front aspect and also offers potential for the new owners to put their stamp on.
Bedroom Two
Enjoying the morning sunshine from the window to the rear aspect, this generous double bedroom is carpeted and continues the neutral décor.
Bedroom Three
Currently set up as a dressing room, this double bedroom enjoys natural light from the window to the rear aspect.
Bedroom Four
Continuing the flooring and décor from the other bedrooms, this bedroom features a window to the front aspect.
Garden
Fully enclosed with a red brick wall, this delightful garden is mostly laid to lawn and offers potential for landscaping to new owners’ specifications, if desired. A large patio space creates the ideal spot for a morning coffee or a spot of outdoor dining, which is surrounded by a mid-level wall with potential for planting within.
Garage
Offering storage space as well as parking for a car, this fantastic garage space offers potential for storage within the rafters above the garage. This space offers versatility and could be utilised in many ways, depending on the new owner’s specifications.
Parking
The property offers off-road parking for two vehicles. Additionally, there is unrestricted on-road parking available in Sovereign Way and the surrounding roads.
10 Sovereign Way presents a fantastic opportunity to acquire a spacious family home, set within a highly convenient location offering a sunny garden and driveway parking. A viewing is highly recommended with the sole agent, Susan Payne Property.
Additional Details
Tenure: Freehold
Council Tax Band: E (approx. £3,118.68 pa – Isle of Wight Council 2025/2026)
Services: Mains water, drainage, gas, and electricity
Agent Notes:
The information provided about this property does not constitute or form part of an offer or contract, nor may it be regarded as representations. All interested parties must verify accuracy and your solicitor must verify tenure/lease information, fixtures and fittings and, where the property has been extended/converted, planning/building regulation consents. All dimensions are approximate and quoted for guidance only and their accuracy cannot be confirmed. Reference to appliances and/or services does not imply that they are necessarily in working order or fit for the purpose. Susan Payne Property Ltd. Company no. 10753879.
Viewing
Please contact us on 01983 566244 if you wish to arrange a viewing appointment for this property, or require further information.
Energy Performance Certificate
Click here to view the Energy Efficiency Rating and Environmental Impact Rating for this property.
Disclaimer
Susan Payne Property endeavour to maintain accurate depictions of properties in Virtual Tours, Floor Plans and descriptions, however, these are intended only as a guide and purchasers must satisfy themselves by personal inspection.
Features
- Spacious, detached family home
- Beautifully presented and well-maintained
- Four bedrooms and two bathrooms
- Well-maintained and updated
- Short distance to local amenities
- Close to schools, travel links and sandy beaches
- Lovely, sunny garden with a large patio
- Driveway and garage parking
- Quiet location on the outskirts of Ryde
- Offered for sale chain-free
Share
Request aValuation
We understand that each of our vendors circumstances are as unique as the homes that we sell, which is why our bespoke, efficient, personal service, is always tailored to suit you and your individual requirements.

