Details
Dysart House, 25, George Street, Ryde
£475,000
Description
Offered for sale chain-free, this stunning Grade II listed townhouse offers flexible accommodation with four double bedrooms, three reception rooms, sea glimpses, and a wonderful rear garden.
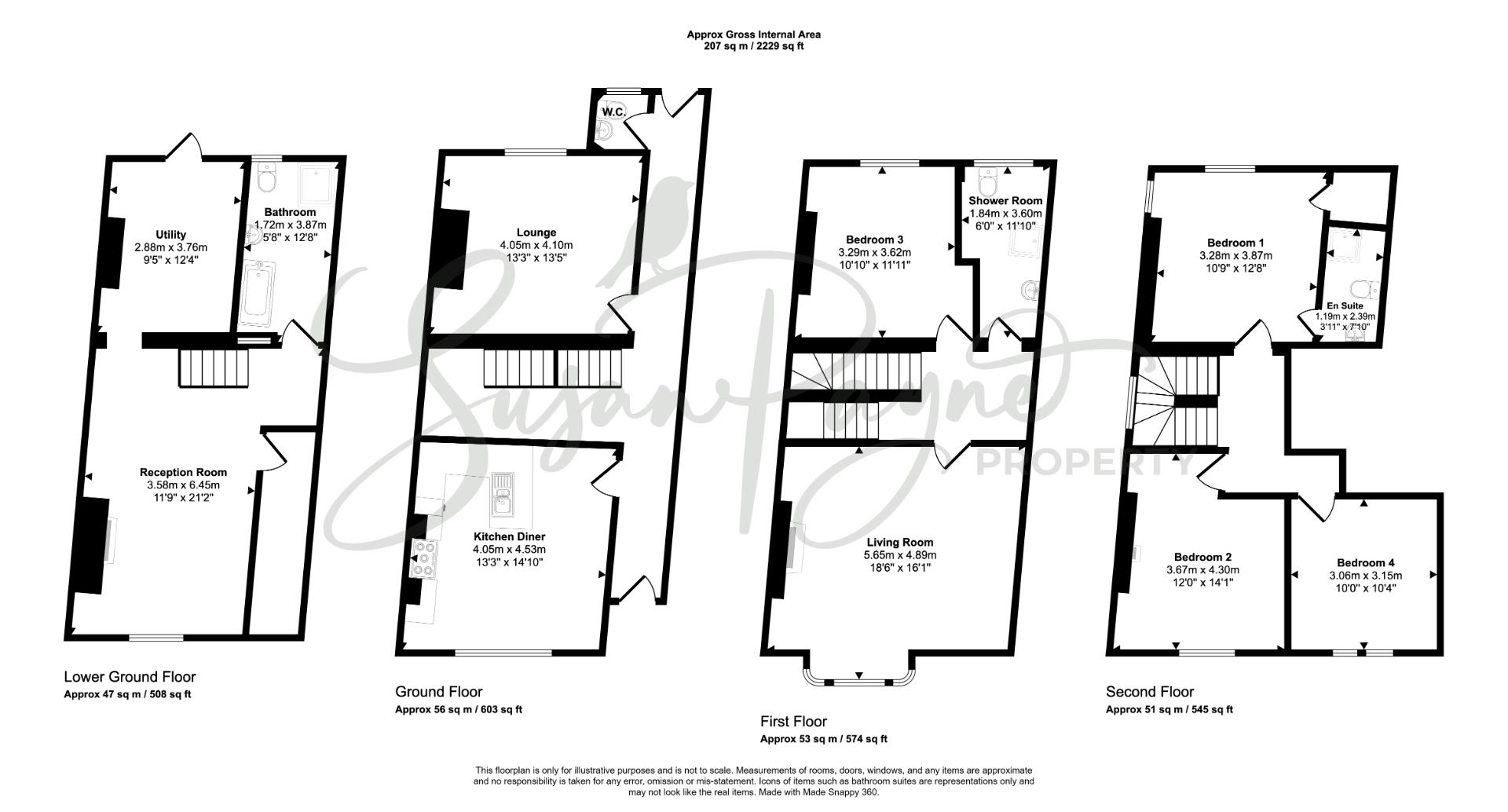
Believed to have been built circa 1837, this fabulous family home oozes character and period charm with high ceilings, wooden floorboards, decorative balustrades, and beautiful cast-iron radiators. The Grade II listed home is spaciously arranged over four floors and has been beautifully maintained and updated over the fifteen years of ownership. The accommodation comprises an entrance hall leading to the kitchen-diner, lounge, ground-floor cloakroom, and stairwells that lead to the lower ground floor and the first floor. The lower ground floor offers a large family bathroom, a utility room, and an additional reception room. The stairwell from the entrance hall leads up to the first-floor landing, which provides access to a large living room, a double bedroom, and a shower room. From the first-floor landing, there is a stairwell leading up to a spacious second-floor landing, which provides access to the second-floor accommodation consisting of three double bedrooms, one with an en-suite. The upper floors benefit from sea glimpses across to the mainland, offering an exciting view, particularly during events such as the Round the Island Race. Outside, the garden has been beautifully landscaped to make the most of the outdoor space, with a lovely terrace to enjoy the summer sunshine.
Within a five-minute walk from the property is Ryde seafront, which boasts long stretches of fine golden sand with numerous seaside activities such as bowling, playgrounds, and an open-air swimming pool. With good local primary and secondary schools nearby, there are also plenty of high street amenities within short walking distance, including boutique shops and convenience stores, a superb choice of eateries, and a local cinema. Another benefit of being so close to the seafront is having easy access to high-speed foot passenger travel to the mainland via Wightlink’s catamaran service and the Hovercraft, which only take 10 minutes to cross the Solent. Additionally, the Fishbourne to Portsmouth car ferry service is located just 3.4 miles away from the property. Regular public transport connections across the island are also within easy reach, with the Southern Vectis bus station and Island Line train service located a short distance away on the Esplanade.
Welcome to 25 George Street
Retaining elegant period charm, the property offers a few stone steps leading up to the traditional front door.
Entrance Hall
Boasting a wonderful stained-glass window above the front door, this lovely entrance hall also has high ceilings and leads through to the rear garden.
Kitchen-Diner
Situated on the ground floor, this wonderful kitchen-diner is well arranged with neutral kitchen base and wall cabinets offering plenty of storage, as well as an integrated dishwasher. The stone worktops incorporate an undermounted 1.5 sink and drainer, plus there is an alcove for a range-style cooker. A large window to the front aspect floods the space with natural light.
Lounge
Also occupying a ground-floor position, this space is currently set up as an office but offers flexibility to be utilised in a number of ways. With a large window to the rear overlooking the garden, the space is finished with white-painted wooden floorboards.
Cloakroom
An essential to any family home, this handy ground-floor cloakroom comprises a pedestal hand basin and a WC, with a window to the rear aspect.
Lower Ground Floor
Accessed via a carpeted stairwell from the entrance hall, this fabulous space could be utilised in a number of ways and offers:
Reception Room
Finished with stunning flagstone floors, which continue through most of the basement, this space is currently utilised as a gym and has been used as a games room in previous years. With access to a storage cupboard, the space provides access to the utility room and bathroom and also features a wonderful log-burning stove to keep the space cosy.
Utility Room
Featuring a brick fireplace, this lovely utility room offers ample space for appliances as well as the gas boiler. There is a door to the outside courtyard, plus ample space for built-in storage if required.
Bathroom
Continuing the flagstone flooring, this lovely bathroom comprises a spa bath, a wall-mounted hand basin, a WC, and a separate shower cubicle. There is a window to the rear aspect and an internal stained-glass window. The space is finished with neutral wall tiles and a heated towel rail.
First Floor Landing
The carpeted stairwell leads up to the first-floor landing, which provides access to the living room, bedroom three, and a shower room. The space benefits from wooden floorboards, which continue into the living area.
Living Room
Flooded with natural light from the curved bay window to the front aspect, which offers sea glimpses, this lovely space features a log-burning stove at the focal point of the room.
Bedroom Three
This double bedroom benefits from a large window to the rear aspect.
Shower Room
Comprising a power shower cubicle, a WC, a hand basin, and a heated towel rail, this space features an obscure glazed window to the rear and is finished with neutral wall tiling and panelling.
Second Floor Landing
With a window to the side aspect offering sea glimpses, this wonderful landing provides access to three double bedrooms (one with an en-suite).
Bedroom One
Boasting dual-aspect windows to the side and rear with glimpses of the sea, this lovely double bedroom offers a built-in wardrobe as well as an en-suite shower room. There is access to the loft from here.
En-Suite
Featuring a shower cubicle, a WC, and a hand basin, this en-suite is neutrally tiled and benefits from a large chrome heated towel rail.
Bedroom Two
Occupying a second-floor position, this double bedroom enjoys a window to the front aspect, a characterful feature fireplace, and access to the loft.
Bedroom Four
Benefitting from a window to the front aspect, this double bedroom enjoys plenty of natural light and offers ample space for bedroom furniture.
Garden
Landscaped to make the most of the sunny garden, this space is mostly laid to lawn with subtle terracing and planting on either side. To the rear of the garden is a raised wooden terrace that enjoys sunshine all day and provides the perfect spot for al fresco dining or entertaining.
Parking
On-street residents’ permit parking is available on George Street, and additional on-street parking is available on surrounding roads.
25 George Street presents an excellent opportunity to acquire a spacious four-bedroom family home with flexible accommodation and is within walking distance of mainland links, beaches, and high street amenities. A viewing is highly recommended by the sole agent, Susan Payne Property.
Additional Details
Tenure: Freehold
Council Tax Band: D (approx. £2,551.65 pa – Isle of Wight Council 2025/2026)
Services: Mains water, gas, electricity, and drainage
Agent Notes:
The information provided about this property does not constitute or form part of an offer or contract, nor may it be regarded as representations. All interested parties must verify accuracy and your solicitor must verify tenure/lease information, fixtures and fittings and, where the property has been extended/converted, planning/building regulation consents. All dimensions are approximate and quoted for guidance only and their accuracy cannot be confirmed. Reference to appliances and/or services does not imply that they are necessarily in working order or fit for the purpose. Susan Payne Property Ltd. Company no.10753879.
Viewing
Please contact us on 01983 566244 if you wish to arrange a viewing appointment for this property, or require further information.
Disclaimer
Susan Payne Property endeavour to maintain accurate depictions of properties in Virtual Tours, Floor Plans and descriptions, however, these are intended only as a guide and purchasers must satisfy themselves by personal inspection.
Offered for sale chain-free, this stunning Grade II listed townhouse offers flexible accommodation with four double bedrooms, three reception rooms, sea glimpses, and a wonderful rear garden.
Believed to have been built circa 1837, this fabulous family home oozes character and period charm with high ceilings, wooden floorboards, decorative balustrades, and beautiful cast-iron radiators. The Grade II listed home is spaciously arranged over four floors and has been beautifully maintained and updated over the fifteen years of ownership. The accommodation comprises an entrance hall leading to the kitchen-diner, lounge, ground-floor cloakroom, and stairwells that lead to the lower ground floor and the first floor. The lower ground floor offers a large family bathroom, a utility room, and an additional reception room. The stairwell from the entrance hall leads up to the first-floor landing, which provides access to a large living room, a double bedroom, and a shower room. From the first-floor landing, there is a stairwell leading up to a spacious second-floor landing, which provides access to the second-floor accommodation consisting of three double bedrooms, one with an en-suite. The upper floors benefit from sea glimpses across to the mainland, offering an exciting view, particularly during events such as the Round the Island Race. Outside, the garden has been beautifully landscaped to make the most of the outdoor space, with a lovely terrace to enjoy the summer sunshine.
Within a five-minute walk from the property is Ryde seafront, which boasts long stretches of fine golden sand with numerous seaside activities such as bowling, playgrounds, and an open-air swimming pool. With good local primary and secondary schools nearby, there are also plenty of high street amenities within short walking distance, including boutique shops and convenience stores, a superb choice of eateries, and a local cinema. Another benefit of being so close to the seafront is having easy access to high-speed foot passenger travel to the mainland via Wightlink’s catamaran service and the Hovercraft, which only take 10 minutes to cross the Solent. Additionally, the Fishbourne to Portsmouth car ferry service is located just 3.4 miles away from the property. Regular public transport connections across the island are also within easy reach, with the Southern Vectis bus station and Island Line train service located a short distance away on the Esplanade.
Welcome to 25 George Street
Retaining elegant period charm, the property offers a few stone steps leading up to the traditional front door.
Entrance Hall
Boasting a wonderful stained-glass window above the front door, this lovely entrance hall also has high ceilings and leads through to the rear garden.
Kitchen-Diner
Situated on the ground floor, this wonderful kitchen-diner is well arranged with neutral kitchen base and wall cabinets offering plenty of storage, as well as an integrated dishwasher. The stone worktops incorporate an undermounted 1.5 sink and drainer, plus there is an alcove for a range-style cooker. A large window to the front aspect floods the space with natural light.
Lounge
Also occupying a ground-floor position, this space is currently set up as an office but offers flexibility to be utilised in a number of ways. With a large window to the rear overlooking the garden, the space is finished with white-painted wooden floorboards.
Cloakroom
An essential to any family home, this handy ground-floor cloakroom comprises a pedestal hand basin and a WC, with a window to the rear aspect.
Lower Ground Floor
Accessed via a carpeted stairwell from the entrance hall, this fabulous space could be utilised in a number of ways and offers:
Reception Room
Finished with stunning flagstone floors, which continue through most of the basement, this space is currently utilised as a gym and has been used as a games room in previous years. With access to a storage cupboard, the space provides access to the utility room and bathroom and also features a wonderful log-burning stove to keep the space cosy.
Utility Room
Featuring a brick fireplace, this lovely utility room offers ample space for appliances as well as the gas boiler. There is a door to the outside courtyard, plus ample space for built-in storage if required.
Bathroom
Continuing the flagstone flooring, this lovely bathroom comprises a spa bath, a wall-mounted hand basin, a WC, and a separate shower cubicle. There is a window to the rear aspect and an internal stained-glass window. The space is finished with neutral wall tiles and a heated towel rail.
First Floor Landing
The carpeted stairwell leads up to the first-floor landing, which provides access to the living room, bedroom three, and a shower room. The space benefits from wooden floorboards, which continue into the living area.
Living Room
Flooded with natural light from the curved bay window to the front aspect, which offers sea glimpses, this lovely space features a log-burning stove at the focal point of the room.
Bedroom Three
This double bedroom benefits from a large window to the rear aspect.
Shower Room
Comprising a power shower cubicle, a WC, a hand basin, and a heated towel rail, this space features an obscure glazed window to the rear and is finished with neutral wall tiling and panelling.
Second Floor Landing
With a window to the side aspect offering sea glimpses, this wonderful landing provides access to three double bedrooms (one with an en-suite).
Bedroom One
Boasting dual-aspect windows to the side and rear with glimpses of the sea, this lovely double bedroom offers a built-in wardrobe as well as an en-suite shower room. There is access to the loft from here.
En-Suite
Featuring a shower cubicle, a WC, and a hand basin, this en-suite is neutrally tiled and benefits from a large chrome heated towel rail.
Bedroom Two
Occupying a second-floor position, this double bedroom enjoys a window to the front aspect, a characterful feature fireplace, and access to the loft.
Bedroom Four
Benefitting from a window to the front aspect, this double bedroom enjoys plenty of natural light and offers ample space for bedroom furniture.
Garden
Landscaped to make the most of the sunny garden, this space is mostly laid to lawn with subtle terracing and planting on either side. To the rear of the garden is a raised wooden terrace that enjoys sunshine all day and provides the perfect spot for al fresco dining or entertaining.
Parking
On-street residents’ permit parking is available on George Street, and additional on-street parking is available on surrounding roads.
25 George Street presents an excellent opportunity to acquire a spacious four-bedroom family home with flexible accommodation and is within walking distance of mainland links, beaches, and high street amenities. A viewing is highly recommended by the sole agent, Susan Payne Property.
Additional Details
Tenure: Freehold
Council Tax Band: D (approx. £2,551.65 pa – Isle of Wight Council 2025/2026)
Services: Mains water, gas, electricity, and drainage
Agent Notes:
The information provided about this property does not constitute or form part of an offer or contract, nor may it be regarded as representations. All interested parties must verify accuracy and your solicitor must verify tenure/lease information, fixtures and fittings and, where the property has been extended/converted, planning/building regulation consents. All dimensions are approximate and quoted for guidance only and their accuracy cannot be confirmed. Reference to appliances and/or services does not imply that they are necessarily in working order or fit for the purpose. Susan Payne Property Ltd. Company no.10753879.
Viewing
Please contact us on 01983 566244 if you wish to arrange a viewing appointment for this property, or require further information.
Disclaimer
Susan Payne Property endeavour to maintain accurate depictions of properties in Virtual Tours, Floor Plans and descriptions, however, these are intended only as a guide and purchasers must satisfy themselves by personal inspection.
Features
- Grade II listed townhouse
- Four double bedrooms and three bathrooms
- Spacious and versatile accommodation
- Delightful, sunny rear garden
- Convenient location for mainland travel links
- Three naturally light reception rooms
- Beautifully maintained and arranged
- Town centre amenities are a short stroll away
- Long stretches of sandy beaches on the doorstep
- Offered for sale chain-free
Share
Request aValuation
We understand that each of our vendors circumstances are as unique as the homes that we sell, which is why our bespoke, efficient, personal service, is always tailored to suit you and your individual requirements.

