Details
Hillcroft, Newport Road, Niton
£585,000
Description
A beautifully positioned detached home enjoying far-reaching countryside views, generous accommodation, a sunroom, garage and garden, perfectly suited to a peaceful rural lifestyle for families or downsizers.
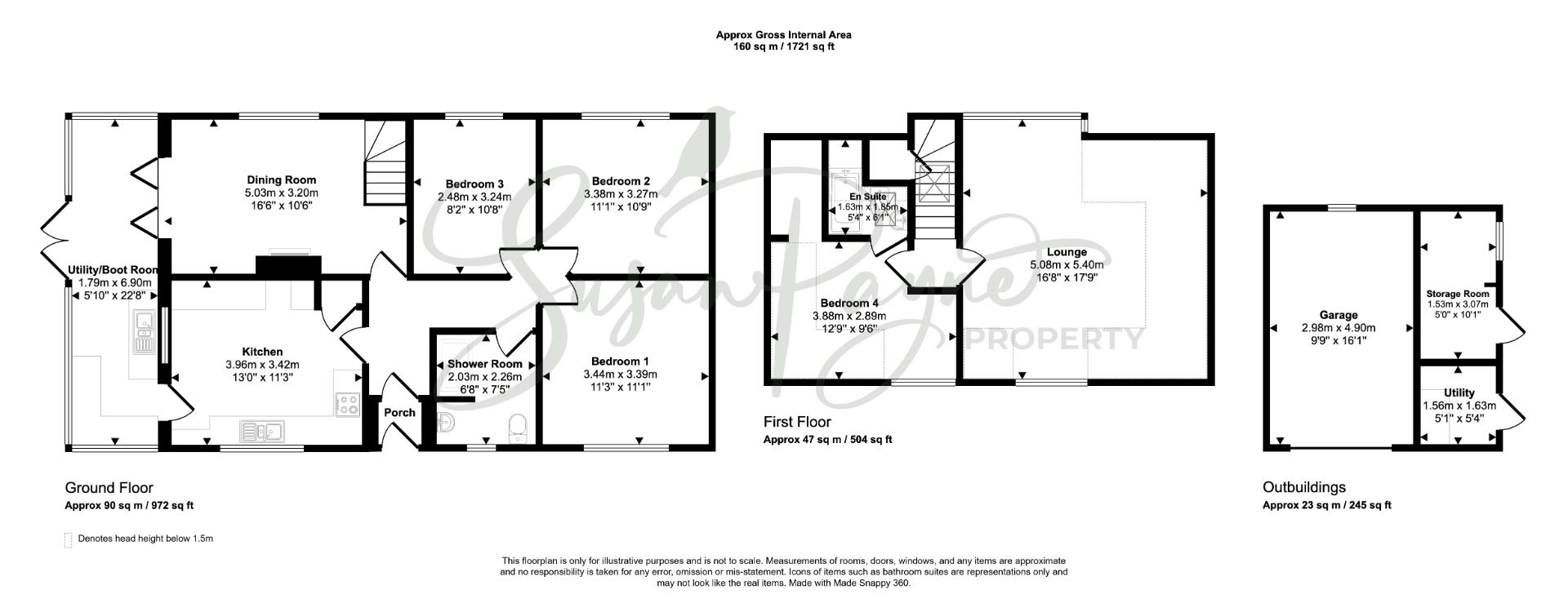
Hillcroft is a beautifully presented detached home offering versatile accommodation arranged over two floors, perfectly designed to embrace its elevated rural setting. The layout provides a balance of practical ground-floor living and generous first-floor living space, making the most of the far-reaching countryside views that surround the property. Well-maintained and updated throughout by the owners of 4 years, the home offers flexible accommodation comprising a porch leading into the entrance hall, which provides access to most of the ground floor accommodation leading to the kitchen, dining room, three double bedrooms and the shower room. The stairwell from the dining room leads up to the lounge and fourth bedroom with an en-suite. Outside, the garden is positioned to the front and side of the property, making the most of the phenomenal views to the front. With a gravelled driveway providing off-road parking, there is a garage to the side with two adjoining rooms.
Situated on the fringes of a National Landscape and the popular village of Niton, Hillcroft is very well-connected to surrounding rural footpaths and is just a short walk or drive to the village which provides a well-stocked general store, a doctor’s surgery, a pharmacy, a primary school and a post office which incorporates a bar and restaurant. There are also two highly regarded village pubs - The White Lion and the historic Buddle Inn, favoured by smugglers in years gone by. The nearby Southern coastline of the island is truly spectacular, appealing to those who want to enjoy the surfing and paragliding on offer, as well as outstanding walking terrain from the historic St. Catherine’s Lighthouse with the Buddle Inn providing a perfect spot for relaxing after exploring the rugged landscape. Located within a ten-minute drive from the property is the bustling seaside resort of Ventnor which provides a whole range of amenities, including boutique shops, fine eateries and supermarkets. Ventnor is renowned for its unique microclimate, golden beach and bustling arts scene with the award-winning Ventnor Fringe Festival that takes place every summer and Ventnor Botanical Gardens, which contains rare, subtropical plants and trees which thrive on this sunny south coast of the island. The county town of Newport can be reached within 20 minutes, offering a whole host of amenities, including supermarkets, boutique shops, and a cinema.
Welcome to Hillcroft
Approached via a driveway providing off-road parking, Hillcroft sits comfortably within its plot, framed by established planting and open views to the front. The entrance leads into a welcoming porch and hallway, immediately setting the tone for the light and space found throughout the home.
Porch & Entrance Hall
The porch opens into a central hallway providing access to the ground-floor accommodation. This space offers a practical and welcoming introduction to the home.
Kitchen
Positioned to take full advantage of the far-reaching views, the kitchen features a range of modern units with ample worktop space and integrated appliances. A large window frames the surrounding landscape, creating a pleasant and practical space for everyday living.
Dining Room
Located adjacent to the kitchen, the dining room offers generous proportions for family meals and entertaining, with easy access to the sunroom and garden beyond. The stairs to the first floor are accessed from here, plus it is naturally lit by a large window to the rear aspect.
Sunroom/Utility
A fantastic addition to the home, the sunroom provides a light-filled space linking the house to the garden. Currently incorporating utility facilities, this versatile area is ideal as a boot room, garden room or informal seating area.
Bedroom One (Ground Floor)
This comfortable double bedroom offers a large window to the front aspect with stunning downland views, plus it features a neutral carpet.
Bedroom Two (Ground Floor)
Another well-proportioned double bedroom, enjoying a window to the rear aspect and space for bedroom furniture.
Bedroom Three (Ground Floor)
Also located on the ground floor, this double bedroom benefits from a window to the rear aspect and could be utilised in other ways, including a home office.
Shower Room
Finished with modern tiling, the ground-floor shower room includes a large walk-in shower fitted with a tower shower unit, WC and wash basin, plus there is an obscure glazed window to the front aspect and an extractor fan.
First-Floor Landing
Stairs from the dining room lead to the first-floor landing, providing access to the lounge, bedroom four and en-suite.
Lounge
Situated on the first floor, the spacious lounge enjoys elevated, far-reaching countryside views through large windows. This beautifully proportioned room offers ample space for seating and relaxation while making the most of the stunning setting, and offers a front row seat for sunrises and sunsets all through the year.
Bedroom Four
Also occupying a first-floor position with a window to the front aspect, this double bedroom offers eaves storage as well as access to an en-suite bathroom.
En-Suite
The en-suite provides a bath with a shower over, WC and wash basin, plus it benefits from a Velux window.
Garden
The garden is predominantly situated to the front and side of the property and is laid to lawn with established borders and planting, offering a peaceful outdoor space to enjoy the surrounding countryside views. The garden provides plenty of room for seating, entertaining and relaxation.
Garage & Outbuildings
The garage offers parking or storage, complemented by additional storage and a potential utility space, enhancing the practicality of the property.
Hillcroft offers a wonderful opportunity to acquire a spacious and versatile home set within a truly picturesque rural location, enjoying stunning views, generous accommodation and excellent outdoor space. An early viewing with the sole agent, Susan Payne Property, is highly recommended.
Additional Details
Tenure: Freehold |
Council Tax Band: D (approx. £2,418.26 pa – Isle of Wight Council 2025/2026) |
Services: Mains water, drainage, electricity, oil central heating, solar panels (owned)
Agent Notes:
The information provided about this property does not constitute or form part of an offer or contract, nor may it be regarded as representations. Images may have been enhanced or edited for illustrative purposes only. All interested parties must verify accuracy and your solicitor must verify tenure/lease information, fixtures and fittings and, where the property has been extended/converted, planning/building regulation consents. All dimensions are approximate and quoted for guidance only and their accuracy cannot be confirmed. Reference to appliances and/or services does not imply that they are necessarily in working order or fit for the purpose. Susan Payne Property Ltd. Company no. 10753879.
Viewing
Please contact us on 01983 566244 if you wish to arrange a viewing appointment for this property, or require further information.
Energy Performance Certificate
Click here to view the Energy Efficiency Rating and Environmental Impact Rating for this property.
Disclaimer
Susan Payne Property endeavour to maintain accurate depictions of properties in Virtual Tours, Floor Plans and descriptions, however, these are intended only as a guide and purchasers must satisfy themselves by personal inspection.
A beautifully positioned detached home enjoying far-reaching countryside views, generous accommodation, a sunroom, garage and garden, perfectly suited to a peaceful rural lifestyle for families or downsizers.
Hillcroft is a beautifully presented detached home offering versatile accommodation arranged over two floors, perfectly designed to embrace its elevated rural setting. The layout provides a balance of practical ground-floor living and generous first-floor living space, making the most of the far-reaching countryside views that surround the property. Well-maintained and updated throughout by the owners of 4 years, the home offers flexible accommodation comprising a porch leading into the entrance hall, which provides access to most of the ground floor accommodation leading to the kitchen, dining room, three double bedrooms and the shower room. The stairwell from the dining room leads up to the lounge and fourth bedroom with an en-suite. Outside, the garden is positioned to the front and side of the property, making the most of the phenomenal views to the front. With a gravelled driveway providing off-road parking, there is a garage to the side with two adjoining rooms.
Situated on the fringes of a National Landscape and the popular village of Niton, Hillcroft is very well-connected to surrounding rural footpaths and is just a short walk or drive to the village which provides a well-stocked general store, a doctor’s surgery, a pharmacy, a primary school and a post office which incorporates a bar and restaurant. There are also two highly regarded village pubs - The White Lion and the historic Buddle Inn, favoured by smugglers in years gone by. The nearby Southern coastline of the island is truly spectacular, appealing to those who want to enjoy the surfing and paragliding on offer, as well as outstanding walking terrain from the historic St. Catherine’s Lighthouse with the Buddle Inn providing a perfect spot for relaxing after exploring the rugged landscape. Located within a ten-minute drive from the property is the bustling seaside resort of Ventnor which provides a whole range of amenities, including boutique shops, fine eateries and supermarkets. Ventnor is renowned for its unique microclimate, golden beach and bustling arts scene with the award-winning Ventnor Fringe Festival that takes place every summer and Ventnor Botanical Gardens, which contains rare, subtropical plants and trees which thrive on this sunny south coast of the island. The county town of Newport can be reached within 20 minutes, offering a whole host of amenities, including supermarkets, boutique shops, and a cinema.
Welcome to Hillcroft
Approached via a driveway providing off-road parking, Hillcroft sits comfortably within its plot, framed by established planting and open views to the front. The entrance leads into a welcoming porch and hallway, immediately setting the tone for the light and space found throughout the home.
Porch & Entrance Hall
The porch opens into a central hallway providing access to the ground-floor accommodation. This space offers a practical and welcoming introduction to the home.
Kitchen
Positioned to take full advantage of the far-reaching views, the kitchen features a range of modern units with ample worktop space and integrated appliances. A large window frames the surrounding landscape, creating a pleasant and practical space for everyday living.
Dining Room
Located adjacent to the kitchen, the dining room offers generous proportions for family meals and entertaining, with easy access to the sunroom and garden beyond. The stairs to the first floor are accessed from here, plus it is naturally lit by a large window to the rear aspect.
Sunroom/Utility
A fantastic addition to the home, the sunroom provides a light-filled space linking the house to the garden. Currently incorporating utility facilities, this versatile area is ideal as a boot room, garden room or informal seating area.
Bedroom One (Ground Floor)
This comfortable double bedroom offers a large window to the front aspect with stunning downland views, plus it features a neutral carpet.
Bedroom Two (Ground Floor)
Another well-proportioned double bedroom, enjoying a window to the rear aspect and space for bedroom furniture.
Bedroom Three (Ground Floor)
Also located on the ground floor, this double bedroom benefits from a window to the rear aspect and could be utilised in other ways, including a home office.
Shower Room
Finished with modern tiling, the ground-floor shower room includes a large walk-in shower fitted with a tower shower unit, WC and wash basin, plus there is an obscure glazed window to the front aspect and an extractor fan.
First-Floor Landing
Stairs from the dining room lead to the first-floor landing, providing access to the lounge, bedroom four and en-suite.
Lounge
Situated on the first floor, the spacious lounge enjoys elevated, far-reaching countryside views through large windows. This beautifully proportioned room offers ample space for seating and relaxation while making the most of the stunning setting, and offers a front row seat for sunrises and sunsets all through the year.
Bedroom Four
Also occupying a first-floor position with a window to the front aspect, this double bedroom offers eaves storage as well as access to an en-suite bathroom.
En-Suite
The en-suite provides a bath with a shower over, WC and wash basin, plus it benefits from a Velux window.
Garden
The garden is predominantly situated to the front and side of the property and is laid to lawn with established borders and planting, offering a peaceful outdoor space to enjoy the surrounding countryside views. The garden provides plenty of room for seating, entertaining and relaxation.
Garage & Outbuildings
The garage offers parking or storage, complemented by additional storage and a potential utility space, enhancing the practicality of the property.
Hillcroft offers a wonderful opportunity to acquire a spacious and versatile home set within a truly picturesque rural location, enjoying stunning views, generous accommodation and excellent outdoor space. An early viewing with the sole agent, Susan Payne Property, is highly recommended.
Additional Details
Tenure: Freehold |
Council Tax Band: D (approx. £2,418.26 pa – Isle of Wight Council 2025/2026) |
Services: Mains water, drainage, electricity, oil central heating, solar panels (owned)
Agent Notes:
The information provided about this property does not constitute or form part of an offer or contract, nor may it be regarded as representations. Images may have been enhanced or edited for illustrative purposes only. All interested parties must verify accuracy and your solicitor must verify tenure/lease information, fixtures and fittings and, where the property has been extended/converted, planning/building regulation consents. All dimensions are approximate and quoted for guidance only and their accuracy cannot be confirmed. Reference to appliances and/or services does not imply that they are necessarily in working order or fit for the purpose. Susan Payne Property Ltd. Company no. 10753879.
Viewing
Please contact us on 01983 566244 if you wish to arrange a viewing appointment for this property, or require further information.
Energy Performance Certificate
Click here to view the Energy Efficiency Rating and Environmental Impact Rating for this property.
Disclaimer
Susan Payne Property endeavour to maintain accurate depictions of properties in Virtual Tours, Floor Plans and descriptions, however, these are intended only as a guide and purchasers must satisfy themselves by personal inspection.
Features
- Elevated rural position with stunning countryside views
- Detached chalet bungalow with flexible accommodation
- First-floor living room with panoramic countryside views
- Four well-proportioned bedrooms
- Modern kitchen with countryside views
- Village amenities close by
- Lovely, mature gardens with stunning views
- Driveway parking with garage and additional storage
- Ideal for those seeking a quiet lifestyle
- Countryside walks and downland views on the doorstep
Share
Request aValuation
We understand that each of our vendors circumstances are as unique as the homes that we sell, which is why our bespoke, efficient, personal service, is always tailored to suit you and your individual requirements.

