Details
Pennyroyal, Buckingham Road, Ryde
£1,000,000
Description
Dating back to 1809, Pennyroyal is an exceptional Grade II listed six-bedroom period home, renovated to a high standard, full of character and set in a highly desirable location in a sought-after setting in Ryde.
Dating from 1809, Pennyroyal is a distinguished Grade II listed marine villa built for Major General Phillip Harris of the Royal Navy, just three years after the Battle of Trafalgar. Set within mature gardens and enjoying elevated views towards the Solent, the property offers a rare combination of historical character, generous accommodation and coastal proximity. Over more than two centuries the house has retained a remarkable collection of original architectural features, including polished wooden flooring, decorative cornicing, period doors, fireplaces and traditional architraves. These details sit comfortably alongside carefully maintained interiors, creating a home that feels both elegant and welcoming.
Later chapters in the property’s story add further interest, including its time as the residence of Queen Elizabeth II’s personal surgeon during the 1950s to 1970s, reflecting the longstanding appeal and prestige of this historic home.
In more recent years, the property has undergone restoration and renovation to not only preserve the stunning characterful and original features, but to incorporate modern-day living into this wonderful family home.
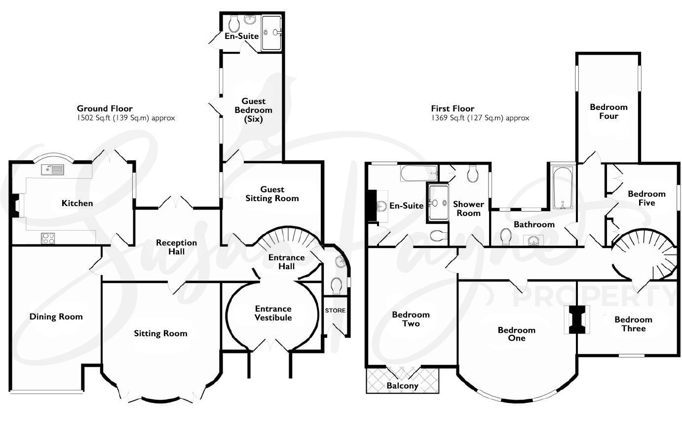
The well-proportioned home comprises the entrance vestibule, which leads through to the entrance hall and reception hall. From here, there is access to the sitting room, dining room, kitchen, private courtyard, reception room, the cellar, and ground floor cloakroom. The hall also features the original staircase, leading up to the first floor and providing access to five bedrooms and three bathrooms. Outside, the property enjoys a large front garden with mature planting, and a sizeable rear courtyard.
Ryde is widely regarded as one of the Isle of Wight’s most desirable coastal towns, known for its Victorian architecture, long sandy beaches and vibrant town centre.
Everyday amenities including independent shops, cafés and restaurants are easily accessible, while Ryde’s esplanade and marina offer a relaxed coastal atmosphere throughout the year. High-speed ferry services provide convenient connections to Portsmouth and the mainland rail network, making the location well suited for those balancing island living with mainland travel.
Approached through traditional brick pillars, the property reveals itself along a gently sweeping driveway framed by established planting and mature trees. The elegant façade of the Georgian villa immediately creates a striking first impression, reflecting the graceful proportions typical of early nineteenth-century coastal architecture.
Entry is through a charming porch leading into a distinctive circular vestibule, where period detailing and a domed ceiling introduce the character that continues throughout the house. From here the accommodation flows naturally into the reception hall and principal living spaces beyond.
Reception Hall
Filled with natural light and framed by decorative archways, the reception hall provides an elegant introduction to the home. Polished wooden floors and ornate cornicing reflect the craftsmanship of the period, creating a welcoming central space connecting the principal rooms.
Sitting Room
Generous in proportion and beautifully light, the main sitting room enjoys a graceful bow frontage with French doors opening onto the elevated terrace. A marble fireplace provides a refined focal point while tall windows frame garden views and glimpses towards the Solent.
Dining Room
Positioned for both everyday use and entertaining, the dining room offers a comfortable yet elegant setting with high ceilings and a characterful fireplace surround. Natural light from tall sash windows enhances the sense of space whilst boasting stunning parquet flooring. Historically, a chest was believed to have been buried beneath the floor of the dining room where historical tenants had kept their valuables.
Kitchen
Thoughtfully arranged for modern living, the kitchen combines traditional styling with practical functionality. Cabinetry and granite work surfaces provide ample preparation space, while French doors open directly onto the courtyard, encouraging an easy connection between indoor and outdoor dining.
Guest Wing
Located on the ground floor, the guest wing provides flexible accommodation including a sitting room, bedroom and shower room. This arrangement has previously been used for visiting family members or adaptable use depending on lifestyle needs.
Reception Room
Forming part of the Guest Wing, this reception room enjoys double aspect glazing and provides versatility to be utilised in a number of ways.
Bedroom
In the late 20th century this space was known as the music room and is rumoured to have been visited by Jimi Hendrix. The space has been utilised as a bedroom and benefits from two windows and a glazed door to the courtyard. The space also features an en-suite shower room.
En-Suite Shower Room
Finished with neutral wall tiling, the space comprises a WC, a wall-mounted hand basin, and a large walk-in shower. There is a window and a door leading out to the courtyard.
First Floor Landing
The beautiful, original turning staircase is quite a feature within the home. The calm and tasteful colour palette continues on the first floor.
Principal Bedroom
Bathed in natural light from elegant bow windows, the principal bedroom enjoys elevated views across the gardens towards the Solent. The room’s proportions create a calm and restful atmosphere befitting the home’s historic character.
Bedroom Two
Benefitting from stunning sea views to The Solent, this fabulous double bedroom offers ample space for bedroom furniture and enjoys an en-suite bathroom.
En-Suite Bathroom
Generously proportioned and boasting a decorative vaulted ceiling, this lovely bathroom comprises a hand basin, a WC, and a bath. A window to the rear aspect fills the room with natural light plus the space is warmed by a chrome heated towel rail.
Bedroom Three
Enjoying the most wonderful views of The Solent with glimpses of Ryde Pier, this double bedroom benefits from a feature fireplace as well as a characterful and decorative shelf. Another wonderful feature in the room is the decorative engraving on the back of the panel door.
Bedroom Four
Flooded with natural light from the dual aspect windows, this lovely double bedroom offers ample space for freestanding furniture.
Family Bathroom
Neutrally finished, this characterful family bathroom comprises a hand basin, a WC and an alcove fitted with a sunken bathtub. The three obscure glazed windows to the rear aspect fill the space with natural light.
Bedroom Five
Offering versatility, this double bedroom features a characterful curved wall and a window to the side aspect with lovely views of The Solent.
Shower Room
Fitted with a hand basin, a WC and a large, enclosed walk-in shower, this spacious shower room benefits from a window to the side aspect as well as access to an airing cupboard concealing the gas boiler.
Cellar
The cellar retains impressive period character with exposed stone walls and original flagstone flooring. Providing three rooms, the space offers excellent storage and potential for further uses depending on individual requirements. The original coal shute, fireplace, stone walls and floors create wonderful features within the space, plus there is access to another courtyard and the driveway from here.
Gardens
The gardens surrounding Pennyroyal provide a peaceful outdoor retreat designed for enjoyment. Expanses of lawn are bordered by established planting and mature trees to the front, creating privacy and seasonal interest throughout the year. A magnificent magnolia tree forms a striking focal point within the grounds. A raised terrace across the front of the property provides an inviting setting for outdoor dining while enjoying views towards the Solent and taking in the sunshine before setting in the West.
To the rear, a secluded courtyard offers a sheltered space for relaxed entertaining, thoughtfully arranged with planting and seating areas that complement the home’s character. The original hand pump is still featured in this space as well as additions have been made, including the addition of an open porch using original parts from Ryde Pier.
Pennyroyal presents a rare opportunity to acquire a beautifully maintained historic Georgian villa offering generous accommodation, mature gardens and coastal views within one of Ryde’s most desirable residential settings. Combining architectural heritage with flexible living space and a highly convenient location, the property will appeal to those seeking a distinctive and historically significant island home. An early viewing is highly recommended with the agent, Susan Payne Property.
Additional Details
Tenure: Freehold |
Council Tax Band: G (approx. £4,252.75 pa – Isle of Wight Council 2025/2026) |
Services: Mains water, gas, electricity, and drainage
Agent Notes:
The information provided about this property does not constitute or form part of an offer or contract, nor may it be regarded as representations. Images may have been enhanced or edited for illustrative purposes only. All interested parties must verify accuracy and your solicitor must verify tenure/lease information, fixtures and fittings and, where the property has been extended/converted, planning/building regulation consents. All dimensions are approximate and quoted for guidance only and their accuracy cannot be confirmed. Reference to appliances and/or services does not imply that they are necessarily in working order or fit for the purpose. Susan Payne Property Ltd. Company no. 10753879.
Viewing
Please contact us on 01983 566244 if you wish to arrange a viewing appointment for this property, or require further information.
Energy Performance Certificate
Click here to view the Energy Efficiency Rating and Environmental Impact Rating for this property.
Disclaimer
Susan Payne Property endeavour to maintain accurate depictions of properties in Virtual Tours, Floor Plans and descriptions, however, these are intended only as a guide and purchasers must satisfy themselves by personal inspection.
Dating back to 1809, Pennyroyal is an exceptional Grade II listed six-bedroom period home, renovated to a high standard, full of character and set in a highly desirable location in a sought-after setting in Ryde.
Dating from 1809, Pennyroyal is a distinguished Grade II listed marine villa built for Major General Phillip Harris of the Royal Navy, just three years after the Battle of Trafalgar. Set within mature gardens and enjoying elevated views towards the Solent, the property offers a rare combination of historical character, generous accommodation and coastal proximity. Over more than two centuries the house has retained a remarkable collection of original architectural features, including polished wooden flooring, decorative cornicing, period doors, fireplaces and traditional architraves. These details sit comfortably alongside carefully maintained interiors, creating a home that feels both elegant and welcoming.
Later chapters in the property’s story add further interest, including its time as the residence of Queen Elizabeth II’s personal surgeon during the 1950s to 1970s, reflecting the longstanding appeal and prestige of this historic home.
In more recent years, the property has undergone restoration and renovation to not only preserve the stunning characterful and original features, but to incorporate modern-day living into this wonderful family home.
The well-proportioned home comprises the entrance vestibule, which leads through to the entrance hall and reception hall. From here, there is access to the sitting room, dining room, kitchen, private courtyard, reception room, the cellar, and ground floor cloakroom. The hall also features the original staircase, leading up to the first floor and providing access to five bedrooms and three bathrooms. Outside, the property enjoys a large front garden with mature planting, and a sizeable rear courtyard.
Ryde is widely regarded as one of the Isle of Wight’s most desirable coastal towns, known for its Victorian architecture, long sandy beaches and vibrant town centre.
Everyday amenities including independent shops, cafés and restaurants are easily accessible, while Ryde’s esplanade and marina offer a relaxed coastal atmosphere throughout the year. High-speed ferry services provide convenient connections to Portsmouth and the mainland rail network, making the location well suited for those balancing island living with mainland travel.
Approached through traditional brick pillars, the property reveals itself along a gently sweeping driveway framed by established planting and mature trees. The elegant façade of the Georgian villa immediately creates a striking first impression, reflecting the graceful proportions typical of early nineteenth-century coastal architecture.
Entry is through a charming porch leading into a distinctive circular vestibule, where period detailing and a domed ceiling introduce the character that continues throughout the house. From here the accommodation flows naturally into the reception hall and principal living spaces beyond.
Reception Hall
Filled with natural light and framed by decorative archways, the reception hall provides an elegant introduction to the home. Polished wooden floors and ornate cornicing reflect the craftsmanship of the period, creating a welcoming central space connecting the principal rooms.
Sitting Room
Generous in proportion and beautifully light, the main sitting room enjoys a graceful bow frontage with French doors opening onto the elevated terrace. A marble fireplace provides a refined focal point while tall windows frame garden views and glimpses towards the Solent.
Dining Room
Positioned for both everyday use and entertaining, the dining room offers a comfortable yet elegant setting with high ceilings and a characterful fireplace surround. Natural light from tall sash windows enhances the sense of space whilst boasting stunning parquet flooring. Historically, a chest was believed to have been buried beneath the floor of the dining room where historical tenants had kept their valuables.
Kitchen
Thoughtfully arranged for modern living, the kitchen combines traditional styling with practical functionality. Cabinetry and granite work surfaces provide ample preparation space, while French doors open directly onto the courtyard, encouraging an easy connection between indoor and outdoor dining.
Guest Wing
Located on the ground floor, the guest wing provides flexible accommodation including a sitting room, bedroom and shower room. This arrangement has previously been used for visiting family members or adaptable use depending on lifestyle needs.
Reception Room
Forming part of the Guest Wing, this reception room enjoys double aspect glazing and provides versatility to be utilised in a number of ways.
Bedroom
In the late 20th century this space was known as the music room and is rumoured to have been visited by Jimi Hendrix. The space has been utilised as a bedroom and benefits from two windows and a glazed door to the courtyard. The space also features an en-suite shower room.
En-Suite Shower Room
Finished with neutral wall tiling, the space comprises a WC, a wall-mounted hand basin, and a large walk-in shower. There is a window and a door leading out to the courtyard.
First Floor Landing
The beautiful, original turning staircase is quite a feature within the home. The calm and tasteful colour palette continues on the first floor.
Principal Bedroom
Bathed in natural light from elegant bow windows, the principal bedroom enjoys elevated views across the gardens towards the Solent. The room’s proportions create a calm and restful atmosphere befitting the home’s historic character.
Bedroom Two
Benefitting from stunning sea views to The Solent, this fabulous double bedroom offers ample space for bedroom furniture and enjoys an en-suite bathroom.
En-Suite Bathroom
Generously proportioned and boasting a decorative vaulted ceiling, this lovely bathroom comprises a hand basin, a WC, and a bath. A window to the rear aspect fills the room with natural light plus the space is warmed by a chrome heated towel rail.
Bedroom Three
Enjoying the most wonderful views of The Solent with glimpses of Ryde Pier, this double bedroom benefits from a feature fireplace as well as a characterful and decorative shelf. Another wonderful feature in the room is the decorative engraving on the back of the panel door.
Bedroom Four
Flooded with natural light from the dual aspect windows, this lovely double bedroom offers ample space for freestanding furniture.
Family Bathroom
Neutrally finished, this characterful family bathroom comprises a hand basin, a WC and an alcove fitted with a sunken bathtub. The three obscure glazed windows to the rear aspect fill the space with natural light.
Bedroom Five
Offering versatility, this double bedroom features a characterful curved wall and a window to the side aspect with lovely views of The Solent.
Shower Room
Fitted with a hand basin, a WC and a large, enclosed walk-in shower, this spacious shower room benefits from a window to the side aspect as well as access to an airing cupboard concealing the gas boiler.
Cellar
The cellar retains impressive period character with exposed stone walls and original flagstone flooring. Providing three rooms, the space offers excellent storage and potential for further uses depending on individual requirements. The original coal shute, fireplace, stone walls and floors create wonderful features within the space, plus there is access to another courtyard and the driveway from here.
Gardens
The gardens surrounding Pennyroyal provide a peaceful outdoor retreat designed for enjoyment. Expanses of lawn are bordered by established planting and mature trees to the front, creating privacy and seasonal interest throughout the year. A magnificent magnolia tree forms a striking focal point within the grounds. A raised terrace across the front of the property provides an inviting setting for outdoor dining while enjoying views towards the Solent and taking in the sunshine before setting in the West.
To the rear, a secluded courtyard offers a sheltered space for relaxed entertaining, thoughtfully arranged with planting and seating areas that complement the home’s character. The original hand pump is still featured in this space as well as additions have been made, including the addition of an open porch using original parts from Ryde Pier.
Pennyroyal presents a rare opportunity to acquire a beautifully maintained historic Georgian villa offering generous accommodation, mature gardens and coastal views within one of Ryde’s most desirable residential settings. Combining architectural heritage with flexible living space and a highly convenient location, the property will appeal to those seeking a distinctive and historically significant island home. An early viewing is highly recommended with the agent, Susan Payne Property.
Additional Details
Tenure: Freehold |
Council Tax Band: G (approx. £4,252.75 pa – Isle of Wight Council 2025/2026) |
Services: Mains water, gas, electricity, and drainage
Agent Notes:
The information provided about this property does not constitute or form part of an offer or contract, nor may it be regarded as representations. Images may have been enhanced or edited for illustrative purposes only. All interested parties must verify accuracy and your solicitor must verify tenure/lease information, fixtures and fittings and, where the property has been extended/converted, planning/building regulation consents. All dimensions are approximate and quoted for guidance only and their accuracy cannot be confirmed. Reference to appliances and/or services does not imply that they are necessarily in working order or fit for the purpose. Susan Payne Property Ltd. Company no. 10753879.
Viewing
Please contact us on 01983 566244 if you wish to arrange a viewing appointment for this property, or require further information.
Energy Performance Certificate
Click here to view the Energy Efficiency Rating and Environmental Impact Rating for this property.
Disclaimer
Susan Payne Property endeavour to maintain accurate depictions of properties in Virtual Tours, Floor Plans and descriptions, however, these are intended only as a guide and purchasers must satisfy themselves by personal inspection.
Features
- Grade II listed, historic villa built in 1809
- Six well-proportioned bedrooms and four bathrooms
- Uninterrupted sea views across The Solent
- Flexible guest wing with sitting room, bedroom and shower room
- Mature gardens and private courtyard, ideal for al fresco dining
- Substantial cellar with original stonework and storage potential
- Walking distance to primary and secondary schools
- Gated driveway providing generous parking
- Convenient Ryde location close to beaches, amenities and mainland links
- Offered for sale chain free
Share
Request aValuation
We understand that each of our vendors circumstances are as unique as the homes that we sell, which is why our bespoke, efficient, personal service, is always tailored to suit you and your individual requirements.

