Details
24, Wishing Well Close, Pondwell
£695,000
Description
Architecturally striking home in an exclusive development of just 25 properties, offering four bedrooms, expansive open-plan living, landscaped gardens and breathtaking countryside and Solent views.
Completed in 2020 and thoughtfully enhanced by the current owners, 24 Wishing Well Close is an exceptional contemporary home occupying one of the most sought-after positions within this exclusive development. The property has been carefully upgraded, with stylish interior design, an abundance of bespoke built-in storage, the addition of a superb ground-floor study or additional bedroom, and also benefits from underfloor heating. For added peace of mind, the property benefits from the balance of the 10 year LABC new-build warranty, which commenced in 2020.
Designed with a striking modern aesthetic, the home is arranged over two levels in an innovative ‘upside-down’ configuration, ensuring that the main living spaces enjoy the finest natural light and the most impressive views across the surrounding countryside, nearby nature reserve and the Solent beyond. The result is a wonderfully bright and spacious home that effortlessly blends modern architecture with comfortable family living.
Externally, the property has been transformed by extensive landscaping which now provides a series of stone terraces, lawns and seating areas, together with a charming summerhouse and a high-quality cabin that offers additional versatility as a workspace, studio or garden retreat.
Wishing Well Close is an exclusive and architecturally distinctive development set within the desirable coastal hamlet of Pondwell, perfectly positioned between the charming sailing village of Seaview and the vibrant seaside town of Ryde. This attractive setting offers the best of both worlds — tranquil countryside surroundings combined with easy access to the Island’s beautiful coastline and amenities. Miles of coastal paths and countryside walks can be enjoyed nearby, while Seaview’s beach, sailing club and popular eateries are only a short distance away. The nearby town of Ryde offers an excellent range of shops, restaurants and cafés as well as convenient mainland passenger links via hovercraft and fast ferry services.
Welcome to 24 Wishing Well Close
Access to this exclusive private estate is gated, and a smart block-paved driveway leads to number 24, which immediately stands out with its bold architectural design and elegant combination of modern materials. A neatly landscaped frontage and extended driveway parking lead to the entrance, where the clean lines of the façade hint at the impressive interior beyond.
Entrance Hall
The welcoming entrance hall provides a bright and practical introduction to the home, with contemporary décor, beautiful oak LVT floors, complete with underfloor heating, and plenty of useful built-in storage. From here, doors lead to the ground floor accommodation and stairs rise to the upper level.
FIRST-FLOOR
Occupying the entire upper level and forming the true heart of the home, this stunning open-plan space has been designed to maximise the exceptional outlook. Finished in neutral tones and elegant oak LVT floors, expansive glazing fills the space with natural light and frames far-reaching countryside and Solent views.
Kitchen and Dining Area
The kitchen is a fabulous mix of contemporary cabinetry, finished in gloss white and complemented with sleek white worktops, integrated appliances and tiled splashbacks. A peninsula creates a social ambience to the room, and neatly separates the kitchen and dining area. The dining area is well proportioned and light, with plenty of space for a dining set. Sliding doors lead on to the upper balcony.
Lounge
The expansive lounge area is flooded with natural light, with sliding doors leading on to the upper balcony and providing a wonderful outlook. The lounge area also benefits from a stylish electric fire to one wall.
Balcony
Large sliding doors open directly onto the balcony, creating a seamless indoor-outdoor connection and providing the perfect setting for alfresco dining or evening drinks while enjoying the spectacular coastal views. The upper balcony is neatly inset, providing both a shelter from the breeze and enhancing privacy.
GROUND-FLOOR
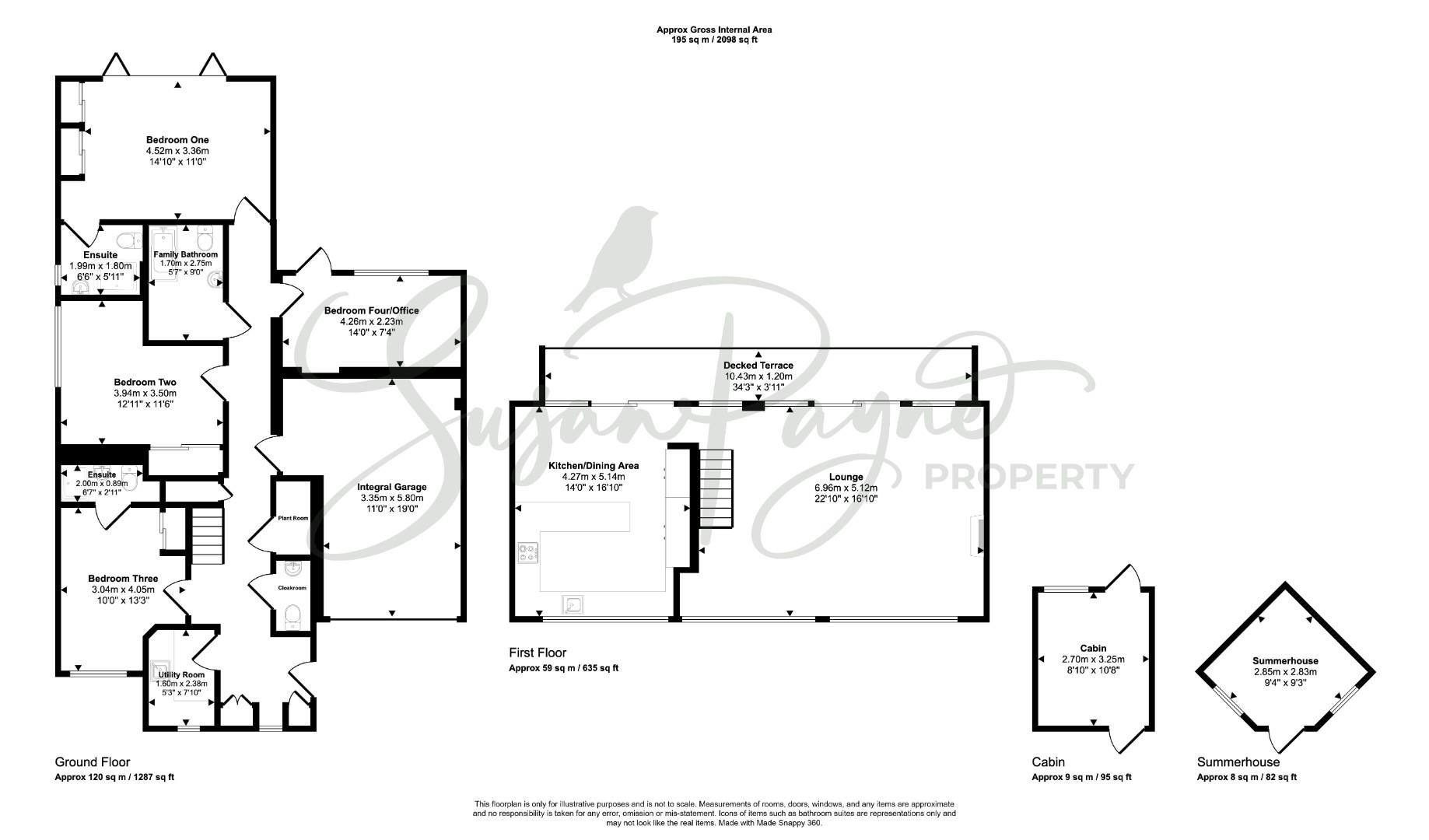
Bedroom One
A beautifully proportioned principal bedroom featuring extensive built-in wardrobes and sliding doors opening to a private lower balcony with breathtaking views over the garden, countryside and towards the Solent.
Ensuite
The ensuite shower room is finished to a high standard with modern fittings, stylish tiling and a contemporary vanity unit, shower and WC.
Bedroom Two
A well-presented double bedroom offering comfortable accommodation and substantial fitted wardrobes.
Bedroom Three
Another good-size double bedroom enjoying wonderful natural light, views to the front aspect, generous fitted wardrobes and a fantastic fitted desk and study area.
Ensuite
Conveniently positioned, this stylish shower room features a modern suite with contemporary fittings and elegant tiling.
Family Bathroom
The family bathroom is elegantly appointed with a modern suite including luxurious whirlpool bath, basin and WC, complemented by stylish tiling and contemporary fittings.
Bedroom Four/Study
Created through a thoughtful extension by the current owners, this room provides exceptional versatility. Currently used as a study with fitted storage and desk space, and with views over the garden, it could equally serve as a comfortable guest bedroom or additional reception room. This room has the added benefit of a door to the rear garden.
Utility Room
An extremely useful utility room offers additional storage and practical workspace, keeping laundry appliances separate from the main living areas.
Cloakroom
Conveniently positioned and well-appointed, the useful separate cloakroom features a WC and compact wash-basin and is finished with elegant wall tiles to dado height.
Plant Room/Cupboard
A large cupboard which provides useful additional storage and acts as a plant room, home to the hot water system and the manifold for the underfloor heating system.
Integral Garage
The immaculately presented integral garage benefits from a smart roller-door, and provides an abundance of excellent storage and secure parking, with internal access from the house.
Outside
The current owners have completely transformed the outside space to create a beautifully landscaped garden arranged across several levels. A generous stone terrace wraps around the outside of the house and provides multiple spaces ideal for entertaining and outdoor dining, while steps lead to a lawned garden bordered with characterful mature planting. At the far end of the garden sits a delightful summerhouse, creating a charming retreat within the grounds. In addition, a substantial garden cabin offers exceptional versatility and could serve multiple purposes. A courtyard garden is located between the driveway and garden cabin, to create a further useful outside space. Backing onto open countryside and woodland, the garden enjoys a peaceful outlook and a wonderful sense of privacy.
Summary
Combining striking contemporary architecture with stylish interiors and exceptional views, 24 Wishing Well Close represents a rare opportunity to acquire a beautifully upgraded home within one of the Island’s most distinctive modern developments. With its flexible accommodation, superb outdoor spaces and enviable setting, this impressive property offers an exceptional lifestyle opportunity. An early viewing with the sole agent Susan Payne Property is highly recommended.
Additional Details
Tenure: Freehold
Estate Charge (for the upkeep of communal areas): £195.86 pa
Council Tax Band: E (IOW Council - Approx £2,963.18 for 2025/26)
Services: Mains water, gas, electricity and drainage
Agent Notes:
The information provided about this property does not constitute or form part of an offer or contract, nor may it be regarded as representations. Images may have been enhanced or edited for illustrative purposes only. All interested parties must verify accuracy and your solicitor must verify tenure/lease information, fixtures and fittings and, where the property has been extended/converted, planning/building regulation consents. All dimensions are approximate and quoted for guidance only and their accuracy cannot be confirmed. Reference to appliances and/or services does not imply that they are necessarily in working order or fit for the purpose. Susan Payne Property Ltd. Company no. 10753879.
Viewing
Please contact us on 01983 566244 if you wish to arrange a viewing appointment for this property, or require further information.
Energy Performance Certificate
Click here to view the Energy Efficiency Rating and Environmental Impact Rating for this property.
Disclaimer
Susan Payne Property endeavour to maintain accurate depictions of properties in Virtual Tours, Floor Plans and descriptions, however, these are intended only as a guide and purchasers must satisfy themselves by personal inspection.
Architecturally striking home in an exclusive development of just 25 properties, offering four bedrooms, expansive open-plan living, landscaped gardens and breathtaking countryside and Solent views.
Completed in 2020 and thoughtfully enhanced by the current owners, 24 Wishing Well Close is an exceptional contemporary home occupying one of the most sought-after positions within this exclusive development. The property has been carefully upgraded, with stylish interior design, an abundance of bespoke built-in storage, the addition of a superb ground-floor study or additional bedroom, and also benefits from underfloor heating. For added peace of mind, the property benefits from the balance of the 10 year LABC new-build warranty, which commenced in 2020.
Designed with a striking modern aesthetic, the home is arranged over two levels in an innovative ‘upside-down’ configuration, ensuring that the main living spaces enjoy the finest natural light and the most impressive views across the surrounding countryside, nearby nature reserve and the Solent beyond. The result is a wonderfully bright and spacious home that effortlessly blends modern architecture with comfortable family living.
Externally, the property has been transformed by extensive landscaping which now provides a series of stone terraces, lawns and seating areas, together with a charming summerhouse and a high-quality cabin that offers additional versatility as a workspace, studio or garden retreat.
Wishing Well Close is an exclusive and architecturally distinctive development set within the desirable coastal hamlet of Pondwell, perfectly positioned between the charming sailing village of Seaview and the vibrant seaside town of Ryde. This attractive setting offers the best of both worlds — tranquil countryside surroundings combined with easy access to the Island’s beautiful coastline and amenities. Miles of coastal paths and countryside walks can be enjoyed nearby, while Seaview’s beach, sailing club and popular eateries are only a short distance away. The nearby town of Ryde offers an excellent range of shops, restaurants and cafés as well as convenient mainland passenger links via hovercraft and fast ferry services.
Welcome to 24 Wishing Well Close
Access to this exclusive private estate is gated, and a smart block-paved driveway leads to number 24, which immediately stands out with its bold architectural design and elegant combination of modern materials. A neatly landscaped frontage and extended driveway parking lead to the entrance, where the clean lines of the façade hint at the impressive interior beyond.
Entrance Hall
The welcoming entrance hall provides a bright and practical introduction to the home, with contemporary décor, beautiful oak LVT floors, complete with underfloor heating, and plenty of useful built-in storage. From here, doors lead to the ground floor accommodation and stairs rise to the upper level.
FIRST-FLOOR
Occupying the entire upper level and forming the true heart of the home, this stunning open-plan space has been designed to maximise the exceptional outlook. Finished in neutral tones and elegant oak LVT floors, expansive glazing fills the space with natural light and frames far-reaching countryside and Solent views.
Kitchen and Dining Area
The kitchen is a fabulous mix of contemporary cabinetry, finished in gloss white and complemented with sleek white worktops, integrated appliances and tiled splashbacks. A peninsula creates a social ambience to the room, and neatly separates the kitchen and dining area. The dining area is well proportioned and light, with plenty of space for a dining set. Sliding doors lead on to the upper balcony.
Lounge
The expansive lounge area is flooded with natural light, with sliding doors leading on to the upper balcony and providing a wonderful outlook. The lounge area also benefits from a stylish electric fire to one wall.
Balcony
Large sliding doors open directly onto the balcony, creating a seamless indoor-outdoor connection and providing the perfect setting for alfresco dining or evening drinks while enjoying the spectacular coastal views. The upper balcony is neatly inset, providing both a shelter from the breeze and enhancing privacy.
GROUND-FLOOR
Bedroom One
A beautifully proportioned principal bedroom featuring extensive built-in wardrobes and sliding doors opening to a private lower balcony with breathtaking views over the garden, countryside and towards the Solent.
Ensuite
The ensuite shower room is finished to a high standard with modern fittings, stylish tiling and a contemporary vanity unit, shower and WC.
Bedroom Two
A well-presented double bedroom offering comfortable accommodation and substantial fitted wardrobes.
Bedroom Three
Another good-size double bedroom enjoying wonderful natural light, views to the front aspect, generous fitted wardrobes and a fantastic fitted desk and study area.
Ensuite
Conveniently positioned, this stylish shower room features a modern suite with contemporary fittings and elegant tiling.
Family Bathroom
The family bathroom is elegantly appointed with a modern suite including luxurious whirlpool bath, basin and WC, complemented by stylish tiling and contemporary fittings.
Bedroom Four/Study
Created through a thoughtful extension by the current owners, this room provides exceptional versatility. Currently used as a study with fitted storage and desk space, and with views over the garden, it could equally serve as a comfortable guest bedroom or additional reception room. This room has the added benefit of a door to the rear garden.
Utility Room
An extremely useful utility room offers additional storage and practical workspace, keeping laundry appliances separate from the main living areas.
Cloakroom
Conveniently positioned and well-appointed, the useful separate cloakroom features a WC and compact wash-basin and is finished with elegant wall tiles to dado height.
Plant Room/Cupboard
A large cupboard which provides useful additional storage and acts as a plant room, home to the hot water system and the manifold for the underfloor heating system.
Integral Garage
The immaculately presented integral garage benefits from a smart roller-door, and provides an abundance of excellent storage and secure parking, with internal access from the house.
Outside
The current owners have completely transformed the outside space to create a beautifully landscaped garden arranged across several levels. A generous stone terrace wraps around the outside of the house and provides multiple spaces ideal for entertaining and outdoor dining, while steps lead to a lawned garden bordered with characterful mature planting. At the far end of the garden sits a delightful summerhouse, creating a charming retreat within the grounds. In addition, a substantial garden cabin offers exceptional versatility and could serve multiple purposes. A courtyard garden is located between the driveway and garden cabin, to create a further useful outside space. Backing onto open countryside and woodland, the garden enjoys a peaceful outlook and a wonderful sense of privacy.
Summary
Combining striking contemporary architecture with stylish interiors and exceptional views, 24 Wishing Well Close represents a rare opportunity to acquire a beautifully upgraded home within one of the Island’s most distinctive modern developments. With its flexible accommodation, superb outdoor spaces and enviable setting, this impressive property offers an exceptional lifestyle opportunity. An early viewing with the sole agent Susan Payne Property is highly recommended.
Additional Details
Tenure: Freehold
Estate Charge (for the upkeep of communal areas): £195.86 pa
Council Tax Band: E (IOW Council - Approx £2,963.18 for 2025/26)
Services: Mains water, gas, electricity and drainage
Agent Notes:
The information provided about this property does not constitute or form part of an offer or contract, nor may it be regarded as representations. Images may have been enhanced or edited for illustrative purposes only. All interested parties must verify accuracy and your solicitor must verify tenure/lease information, fixtures and fittings and, where the property has been extended/converted, planning/building regulation consents. All dimensions are approximate and quoted for guidance only and their accuracy cannot be confirmed. Reference to appliances and/or services does not imply that they are necessarily in working order or fit for the purpose. Susan Payne Property Ltd. Company no. 10753879.
Viewing
Please contact us on 01983 566244 if you wish to arrange a viewing appointment for this property, or require further information.
Energy Performance Certificate
Click here to view the Energy Efficiency Rating and Environmental Impact Rating for this property.
Disclaimer
Susan Payne Property endeavour to maintain accurate depictions of properties in Virtual Tours, Floor Plans and descriptions, however, these are intended only as a guide and purchasers must satisfy themselves by personal inspection.
Features
- Beautiful contemporary home in an exclusive development
- Spectacular countryside, nature reserve and Solent views
- Modern upside-down layout maximising light and scenery
- Impressive open-plan living space opening to a wide balcony
- Four bedrooms with three bathrooms including two ensuites
- Extended to create a ground floor study/fourth bedroom
- Beautifully landscaped and well-maintained garden
- Detached cabin/shed ideal for studio, gym or workspace
- Driveway parking and integral garage
- Quiet and desirable coastal location near Seaview and Ryde
Share
Request aValuation
We understand that each of our vendors circumstances are as unique as the homes that we sell, which is why our bespoke, efficient, personal service, is always tailored to suit you and your individual requirements.

