Details
St Kieran's, 27 Calbourne Road, Carisbrooke
£730,000
Description
A period home set within circa 3.25 acres of gardens, woodland and meadow, enjoying breathtaking panoramic views and located conveniently close to the amenities of Carisbrooke.
Constructed in 1924, St Kieran’s is a home of enduring character and quiet grandeur, set within an exceptional plot of approximately 3.25 acres. Elevated within its grounds, the property enjoys far-reaching views across the Island and beyond, with glimpses stretching towards the Solent. The house retains a wealth of original detailing, from its beautifully crafted stained glass entrance door to deep skirting boards, beautiful timber floors and generous proportions throughout. While already a comfortable and well-loved home, there is potential for further enhancement or extension, subject to the necessary permissions. The true distinction, however, lies in the setting — a rare combination of space, privacy and remarkable views, all within easy reach of local amenities.
St Kieran’s occupies an enviable position on the outskirts of Carisbrooke, where the landscape begins to open into rolling countryside. Despite its peaceful and secluded feel, the property is exceptionally well placed for access to the village amenities, and the larger town of Newport is nearby, offering a comprehensive range of shops, schools, restaurants and everyday conveniences. For those drawn to the outdoors, the location is outstanding. The Tennyson Trail begins adjacent to the boundary, opening up miles of scenic walks and bridleways across the Island’s most celebrated landscapes. The surrounding countryside provides an ever-changing backdrop, with sweeping views, woodland paths and open downland all within immediate reach.
Welcome to St Kieran’s
Approached between enchanting brick pillars, with a block-paved driveway that gently rises through its grounds, St Kieran’s reveals itself with a sense of quiet presence. The setting is immediately captivating - wide open skies, mature trees and a landscape that unfolds in every direction.
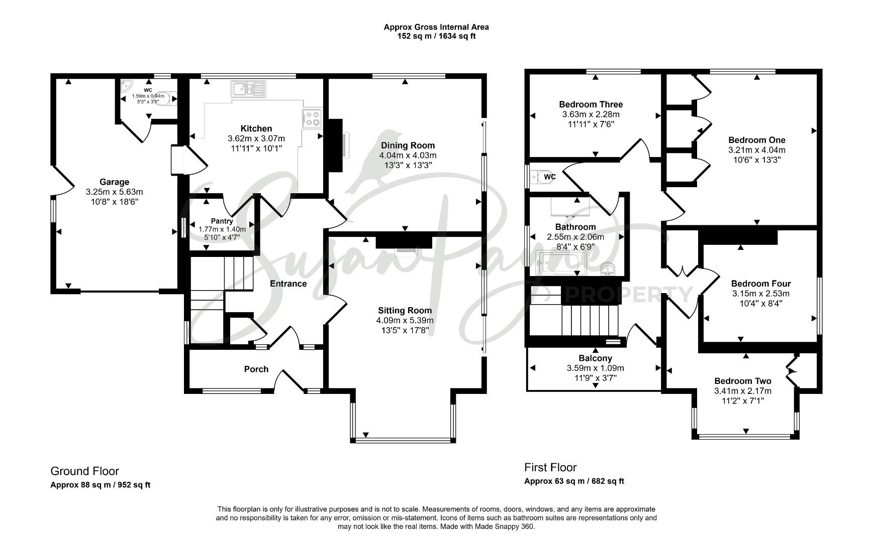
Porch and Entrance Hall
The entrance porch provides a practical transition into the home, leading through the magnificent original stained glass front door into a welcoming entrance hall. Here, the proportions of the house become immediately apparent, with high ceilings and traditional detailing throughout. A cupboard provides useful coat storage, and the fabulous timber floors flow through into the ground floor accommodation.
Sitting Room
A beautifully proportioned reception room with a bay window framing far-reaching views across the landscape, plus doors to the terrace. A log burning stove set within a character fireplace creates a warm focal point, complemented by original floorboards and an abundance of natural light.
Dining Room
Equally impressive, the dining room enjoys direct access to the terrace and gardens via glazed doors, creating a seamless connection between inside and out. A second log burning stove enhances the atmosphere, making this a perfect space for both entertaining and everyday living.
Kitchen
Positioned to overlook the gardens and land beyond, the kitchen offers a range of fitted units and a practical layout. Large enough to accommodate a breakfast table, the kitchen also benefits from a large walk-in pantry which provides additional storage and functionality. A door connects to the garage.
First-Floor Landing & Balcony
A characterful turning staircase leads up to the first-floor landing, which also features access to a balcony - a wonderful vantage point from which to take in panoramic views stretching across a large proportion of the north of the Island with the Solent and Southampton Water in the distance.
Bedroom One
A generous principal bedroom enjoying a sunny outlook and elevated views across the surrounding landscape, creating a peaceful and restful retreat. A trio of fitted cupboards add useful storage.
Bedroom Two
A double bedroom with fitted wardrobes and a bay window capturing far-reaching vistas, reinforcing the home’s strong connection to its setting.
Bedroom Three
Currently arranged as a study, this room offers flexibility as a bedroom or workspace, with views over the garden and land.
Bedroom Four
A further bedroom with a fabulous outlook across the land and woodland, ideal for guests or family accommodation.
Family Bathroom & Separate WC
The bathroom features a suite including a heritage style rolltop bath and a vanity basin, plus there are useful fitted cupboards. The bathroom is complemented by a separate WC, ideally positioned to serve the first floor accommodation.
Garage & WC
Accessed via an up-an-over door, or internally from the kitchen, the substantial garage is well proportioned, with a window to the side aspect. A door leads to a useful WC and there is also a door to the side aspect which connects to the garden. The 'Gardeners WC' is ideally positioned, and features a WC, wash basin and a window to the rear aspect.
Outside
The grounds of St Kieran’s are truly exceptional. Extending to approximately 3.25 acres, they comprise a rich tapestry of gardens, a large open expanse with areas of wildflower meadow and bordered by established woodland. A sheltered terrace with a pond sits close to the house, offering a tranquil setting for outdoor dining and relaxation. A winding woodland pathway leads around the perimeter of the land, creating an enchanting walking route. There is also a kitchen garden area, well-established fruit trees, poly-tunnel and additional outbuildings supporting a more self-sufficient lifestyle if desired. Throughout the grounds, the views remain a constant presence - wide, uninterrupted and ever-changing with the seasons.
In Summary
St Kieran’s is a rare offering - a home of genuine character set within remarkable grounds, combining period charm with an extraordinary setting and far-reaching views. With scope to enhance and a location that balances tranquillity with convenience, it presents a unique opportunity to create a truly special country home. An early viewing with the sole agent Susan Payne Property is highly recommended.
Additional Details
Tenure: Freehold
Council Tax Band: F (Approx £3,563.83 for 2025/26)
Services: Mains water, gas, electricity and drainage
Title: The house and surrounding garden are on one title, and land has separate titles. There is a title for a 3m wide strip at the perimeter of the land, which includes restrictions so that it remains agricultural (ie no development).
Agent Notes:
The information provided about this property does not constitute or form part of an offer or contract, nor may it be regarded as representations. All interested parties must verify accuracy and your solicitor must verify tenure/lease information, fixtures and fittings and, where the property has been extended/converted, planning/building regulation consents. All dimensions are approximate and quoted for guidance only and their accuracy cannot be confirmed. Reference to appliances and/or services does not imply that they are necessarily in working order or fit for the purpose. Susan Payne Property Ltd. Company no. 10753879.
Viewing
Please contact us on 01983 566244 if you wish to arrange a viewing appointment for this property, or require further information.
Disclaimer
Susan Payne Property endeavour to maintain accurate depictions of properties in Virtual Tours, Floor Plans and descriptions, however, these are intended only as a guide and purchasers must satisfy themselves by personal inspection.
A period home set within circa 3.25 acres of gardens, woodland and meadow, enjoying breathtaking panoramic views and located conveniently close to the amenities of Carisbrooke.
Constructed in 1924, St Kieran’s is a home of enduring character and quiet grandeur, set within an exceptional plot of approximately 3.25 acres. Elevated within its grounds, the property enjoys far-reaching views across the Island and beyond, with glimpses stretching towards the Solent. The house retains a wealth of original detailing, from its beautifully crafted stained glass entrance door to deep skirting boards, beautiful timber floors and generous proportions throughout. While already a comfortable and well-loved home, there is potential for further enhancement or extension, subject to the necessary permissions. The true distinction, however, lies in the setting — a rare combination of space, privacy and remarkable views, all within easy reach of local amenities.
St Kieran’s occupies an enviable position on the outskirts of Carisbrooke, where the landscape begins to open into rolling countryside. Despite its peaceful and secluded feel, the property is exceptionally well placed for access to the village amenities, and the larger town of Newport is nearby, offering a comprehensive range of shops, schools, restaurants and everyday conveniences. For those drawn to the outdoors, the location is outstanding. The Tennyson Trail begins adjacent to the boundary, opening up miles of scenic walks and bridleways across the Island’s most celebrated landscapes. The surrounding countryside provides an ever-changing backdrop, with sweeping views, woodland paths and open downland all within immediate reach.
Welcome to St Kieran’s
Approached between enchanting brick pillars, with a block-paved driveway that gently rises through its grounds, St Kieran’s reveals itself with a sense of quiet presence. The setting is immediately captivating - wide open skies, mature trees and a landscape that unfolds in every direction.
Porch and Entrance Hall
The entrance porch provides a practical transition into the home, leading through the magnificent original stained glass front door into a welcoming entrance hall. Here, the proportions of the house become immediately apparent, with high ceilings and traditional detailing throughout. A cupboard provides useful coat storage, and the fabulous timber floors flow through into the ground floor accommodation.
Sitting Room
A beautifully proportioned reception room with a bay window framing far-reaching views across the landscape, plus doors to the terrace. A log burning stove set within a character fireplace creates a warm focal point, complemented by original floorboards and an abundance of natural light.
Dining Room
Equally impressive, the dining room enjoys direct access to the terrace and gardens via glazed doors, creating a seamless connection between inside and out. A second log burning stove enhances the atmosphere, making this a perfect space for both entertaining and everyday living.
Kitchen
Positioned to overlook the gardens and land beyond, the kitchen offers a range of fitted units and a practical layout. Large enough to accommodate a breakfast table, the kitchen also benefits from a large walk-in pantry which provides additional storage and functionality. A door connects to the garage.
First-Floor Landing & Balcony
A characterful turning staircase leads up to the first-floor landing, which also features access to a balcony - a wonderful vantage point from which to take in panoramic views stretching across a large proportion of the north of the Island with the Solent and Southampton Water in the distance.
Bedroom One
A generous principal bedroom enjoying a sunny outlook and elevated views across the surrounding landscape, creating a peaceful and restful retreat. A trio of fitted cupboards add useful storage.
Bedroom Two
A double bedroom with fitted wardrobes and a bay window capturing far-reaching vistas, reinforcing the home’s strong connection to its setting.
Bedroom Three
Currently arranged as a study, this room offers flexibility as a bedroom or workspace, with views over the garden and land.
Bedroom Four
A further bedroom with a fabulous outlook across the land and woodland, ideal for guests or family accommodation.
Family Bathroom & Separate WC
The bathroom features a suite including a heritage style rolltop bath and a vanity basin, plus there are useful fitted cupboards. The bathroom is complemented by a separate WC, ideally positioned to serve the first floor accommodation.
Garage & WC
Accessed via an up-an-over door, or internally from the kitchen, the substantial garage is well proportioned, with a window to the side aspect. A door leads to a useful WC and there is also a door to the side aspect which connects to the garden. The 'Gardeners WC' is ideally positioned, and features a WC, wash basin and a window to the rear aspect.
Outside
The grounds of St Kieran’s are truly exceptional. Extending to approximately 3.25 acres, they comprise a rich tapestry of gardens, a large open expanse with areas of wildflower meadow and bordered by established woodland. A sheltered terrace with a pond sits close to the house, offering a tranquil setting for outdoor dining and relaxation. A winding woodland pathway leads around the perimeter of the land, creating an enchanting walking route. There is also a kitchen garden area, well-established fruit trees, poly-tunnel and additional outbuildings supporting a more self-sufficient lifestyle if desired. Throughout the grounds, the views remain a constant presence - wide, uninterrupted and ever-changing with the seasons.
In Summary
St Kieran’s is a rare offering - a home of genuine character set within remarkable grounds, combining period charm with an extraordinary setting and far-reaching views. With scope to enhance and a location that balances tranquillity with convenience, it presents a unique opportunity to create a truly special country home. An early viewing with the sole agent Susan Payne Property is highly recommended.
Additional Details
Tenure: Freehold
Council Tax Band: F (Approx £3,563.83 for 2025/26)
Services: Mains water, gas, electricity and drainage
Title: The house and surrounding garden are on one title, and land has separate titles. There is a title for a 3m wide strip at the perimeter of the land, which includes restrictions so that it remains agricultural (ie no development).
Agent Notes:
The information provided about this property does not constitute or form part of an offer or contract, nor may it be regarded as representations. All interested parties must verify accuracy and your solicitor must verify tenure/lease information, fixtures and fittings and, where the property has been extended/converted, planning/building regulation consents. All dimensions are approximate and quoted for guidance only and their accuracy cannot be confirmed. Reference to appliances and/or services does not imply that they are necessarily in working order or fit for the purpose. Susan Payne Property Ltd. Company no. 10753879.
Viewing
Please contact us on 01983 566244 if you wish to arrange a viewing appointment for this property, or require further information.
Disclaimer
Susan Payne Property endeavour to maintain accurate depictions of properties in Virtual Tours, Floor Plans and descriptions, however, these are intended only as a guide and purchasers must satisfy themselves by personal inspection.
Features
- Elegant 1920s detached home with retained period character
- Approx. 3.25 acres including woodland and wildflower meadow
- Spectacular panoramic views across the Island to the Solent
- Four bedrooms and well-balanced family accommodation
- Two reception rooms with log burning stoves
- Kitchen/breakfast room with pantry and garden outlook
- Garage and extensive driveway parking
- Kitchen garden, poly-tunnel, sheds and productive outdoor space
- Semi-rural location and close to local amenities
- Offered for sale chain-free and ready to move into
Share
Request aValuation
We understand that each of our vendors circumstances are as unique as the homes that we sell, which is why our bespoke, efficient, personal service, is always tailored to suit you and your individual requirements.

