Details
Yellowsands, Jenny Streets Lane, Bembridge
OIEO £450,000
(Sold Subject To Contract)
Description
Boasting incredible views to the West, this substantial six-bedroom chalet bungalow offers spacious accommodation with potential for the new owners to personalise, and benefits from wrap-around gardens, plenty of driveway parking, and a garage.
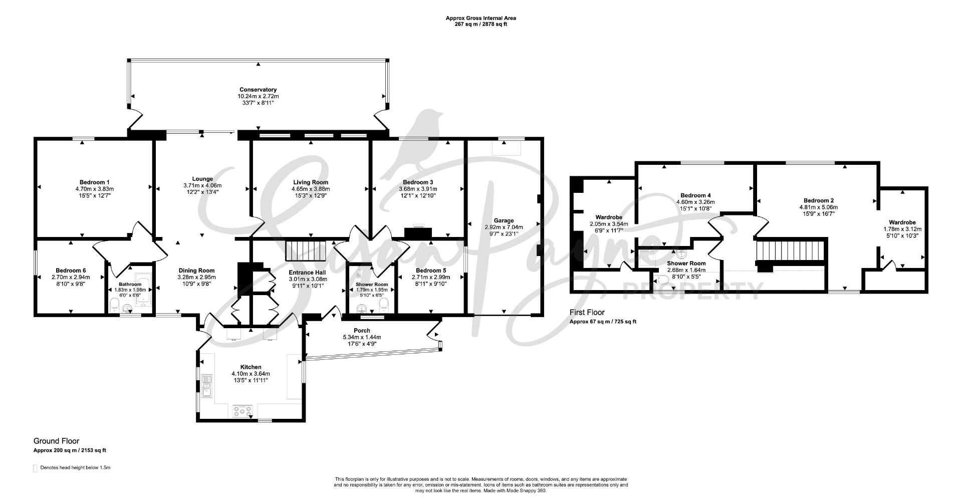
Occupying an elevated position with expansive views across the surrounding countryside, this substantial detached chalet bungalow offers a special opportunity to acquire a generous and adaptable home which has been maintained and lovingly cared for since 1979. The property offers an exciting opportunity for the new owners to personalise whilst providing flexible accommodation to be arranged in a number of ways to suit a range of needs. The accommodation comprises a porch leading to the entrance hall, which provides access to the kitchen, two reception rooms, the conservatory, four bedrooms and two bathrooms, on the ground floor. The stairwell from the entrance hall leads up to the first-floor landing, which provides access to two further bedrooms and a shower room. The property also benefits from wrap-around gardens, which provide the new owners with further opportunity to make their own. To the front of the property is plenty of off-road parking as well as access to a garage.
With its fabulous beaches, harbour and yacht clubs, and a whole host of great village amenities, Bembridge is one of the most sought-after locations on the island and was even crowned ‘Village of the Year’ in the BBC Countryfile Magazine Awards 2019. Yellowsands is conveniently located on the outskirts of this bustling village within close proximity to a local C of E Primary school and a GP surgery, highly regarded pubs and restaurants, a beauty salon, and a great range of shops, as well as a post office. This home is also the perfect base for nearby countryside walks, amongst which are Bembridge Windmill, maintained by The National Trust, Culver Down with its breathtaking views and the beautiful, sheltered cove at Whitecliff Bay. Newport, the County Town of the Isle of Wight, is just a 20-minute drive from the property, providing wide-ranging shops, restaurants, and a cinema complex, plus Ryde is located only 7.5 miles to the Northwest with a range of boutique shops, vast sandy beaches and high-speed passenger connections to the mainland. Public transportation services are within easy access with the Southern Vectis bus route 8 linking Hillway Road to other parts of the Island, which serves Newport, Ryde, and Sandown, including intermediate towns.
Welcome to Yellowsands
Approached via a well-maintained unmade lane from Hillway Road, the striking chalet bungalow offers a generous driveway providing extensive parking and access to the garage. The property enjoys an elevated position that immediately highlights the far-reaching countryside views beyond.
Porch
This handy porch space provides space for coats and shoes and benefits from glazing to the front and side.
Entrance Hall
Positioned centrally within the home, the entrance hall creates a practical and welcoming first impression. Fitted with two storage cupboards, one concealing the gas boiler, there is ample storage space for coats and shoes. The stairwell leads to the first floor from here.
Kitchen
The kitchen is a generous and practical space with extensive worktop areas and a range of freestanding cabinetry. Positioned to overlook the front garden and driveway, the room offers excellent potential for redesign or modernisation to create a contemporary family kitchen, if desired.
Lounge-Diner
Flooded with natural light from large windows, the room is made up of a dining and living space that offers a welcoming setting for both everyday meals and larger gatherings or family occasions. The room sits conveniently between the kitchen and living areas, enhancing the natural flow of the ground floor. There is ample space for a large dining set as well as a living area.
Conservatory
Spanning almost the whole width of the bungalow to the rear, this fantastic conservatory offers additional space for dining and lounging, as well as providing a front row seat to stunning, far-reaching views to the west, including sunsets all through the year. There are two doors to either side, one leading to an elevated patio area, and the other into the garden via a ramp.
Living Room
Generously proportioned and filled with natural light, the living room offers an inviting space for relaxation and entertaining. The space connects with the lounge-diner and the hall, plus windows to the rear aspect overlook the conservatory.
Bedroom One
Conveniently located on the ground floor, this generous double bedroom enjoys stunning countryside views to the rear aspect and offers ample space for freestanding or fitted bedroom furniture.
Bedroom Three
Also featuring a window to the front aspect with stunning views, this generous double bedroom offers ample space for bedroom furniture and also features a fireplace surround.
Bedroom Five
Also conveniently situated on the ground floor, this double bedroom features an obscure glazed window to the side aspect, overlooking the garage, and provides versatility to be utilised in a number of ways.
Bedroom Six
Flooded with natural light from the window to the side aspect, this double bedroom is the smallest of the six bedrooms but still provides ample space for bedroom furniture.
Ground Floor Bathroom
Servicing bedroom one and bedroom six, this family bathroom comprises a bath, a handbasin, and a WC, plus it benefits from an obscure glazed window to the front aspect.
Ground Floor Shower Room
Neutrally finished in a white tile wall surround with caricature features, this shower room comprises a WC, a hand basin, and a level access walk-in shower.
First Floor Landing
The stairwell from the entrance hall leads up to a landing space providing access to a further two bedrooms and a shower room.
Bedroom Two
Generously proportioned and flooded with natural light from the windows to the front and rear, this double bedroom offers an opportunity for development with potential for a large en-suite or walk-in wardrobe. The elevated position from the first floor offers even more expansive views from Culver Downs across the island.
Bedroom Four
Currently utilised as a living area, this double bedroom features an additional room, currently used as a bedroom, which could be utilised as an en-suite or walk in wardrobe. The views to the rear aspect are uninterrupted and the space offers the best seat in the house for watching the sun go down.
First Floor Shower Room
With an obscure glazed window to the front aspect, this spacious shower room comprises a shower cubicle, a WC, and a hand basin.
Garden
The garden surrounds the home and offers a blend of lawn, mature planting, and areas that could be further landscaped to create attractive outdoor living spaces, plus a couple of ponds. Positioned to enjoy open countryside views, the outdoor setting provides a peaceful backdrop throughout the seasons. A raised patio space makes the most of sunshine all through the day and offers a fabulous spot to enjoy the uninterrupted views. There is access around both sides of the house, and the garden continues up to the driveway at the front.
Parking and Garage
Generous gravelled parking areas to the front of the property allow parking for multiple vehicles, plus there is an additional space on the other side of the lane for a vehicle, if required. There is a garage to one side of the property, which provides further parking or storage.
Combining generous proportions with a highly adaptable layout, Yellowsands presents a rare opportunity to acquire a substantial detached home in an elevated countryside setting. While the property offers opportunity for modernisation, its scale, position, and flexible accommodation create exceptional potential for buyers seeking a long-term family home or peaceful rural retreat. An early viewing is highly recommended with the sole agent, Susan Payne Property.
Additional Details
Tenure: Freehold
Council Tax Band: D (approx. £2,480.05 pa – Isle of Wight Council 2025/2026)
Services: Mains water, drainage, gas, and electricity
Agent Notes:
The information provided about this property does not constitute or form part of an offer or contract, nor may it be regarded as representations. Images may have been enhanced or edited for illustrative purposes only. All interested parties must verify accuracy and your solicitor must verify tenure/lease information, fixtures and fittings and, where the property has been extended/converted, planning/building regulation consents. All dimensions are approximate and quoted for guidance only and their accuracy cannot be confirmed. Reference to appliances and/or services does not imply that they are necessarily in working order or fit for the purpose. Susan Payne Property Ltd. Company no. 10753879.
Viewing
Please contact us on 01983 566244 if you wish to arrange a viewing appointment for this property, or require further information.
Energy Performance Certificate
Click here to view the Energy Efficiency Rating and Environmental Impact Rating for this property.
Disclaimer
Susan Payne Property endeavour to maintain accurate depictions of properties in Virtual Tours, Floor Plans and descriptions, however, these are intended only as a guide and purchasers must satisfy themselves by personal inspection.
Boasting incredible views to the West, this substantial six-bedroom chalet bungalow offers spacious accommodation with potential for the new owners to personalise, and benefits from wrap-around gardens, plenty of driveway parking, and a garage.
Occupying an elevated position with expansive views across the surrounding countryside, this substantial detached chalet bungalow offers a special opportunity to acquire a generous and adaptable home which has been maintained and lovingly cared for since 1979. The property offers an exciting opportunity for the new owners to personalise whilst providing flexible accommodation to be arranged in a number of ways to suit a range of needs. The accommodation comprises a porch leading to the entrance hall, which provides access to the kitchen, two reception rooms, the conservatory, four bedrooms and two bathrooms, on the ground floor. The stairwell from the entrance hall leads up to the first-floor landing, which provides access to two further bedrooms and a shower room. The property also benefits from wrap-around gardens, which provide the new owners with further opportunity to make their own. To the front of the property is plenty of off-road parking as well as access to a garage.
With its fabulous beaches, harbour and yacht clubs, and a whole host of great village amenities, Bembridge is one of the most sought-after locations on the island and was even crowned ‘Village of the Year’ in the BBC Countryfile Magazine Awards 2019. Yellowsands is conveniently located on the outskirts of this bustling village within close proximity to a local C of E Primary school and a GP surgery, highly regarded pubs and restaurants, a beauty salon, and a great range of shops, as well as a post office. This home is also the perfect base for nearby countryside walks, amongst which are Bembridge Windmill, maintained by The National Trust, Culver Down with its breathtaking views and the beautiful, sheltered cove at Whitecliff Bay. Newport, the County Town of the Isle of Wight, is just a 20-minute drive from the property, providing wide-ranging shops, restaurants, and a cinema complex, plus Ryde is located only 7.5 miles to the Northwest with a range of boutique shops, vast sandy beaches and high-speed passenger connections to the mainland. Public transportation services are within easy access with the Southern Vectis bus route 8 linking Hillway Road to other parts of the Island, which serves Newport, Ryde, and Sandown, including intermediate towns.
Welcome to Yellowsands
Approached via a well-maintained unmade lane from Hillway Road, the striking chalet bungalow offers a generous driveway providing extensive parking and access to the garage. The property enjoys an elevated position that immediately highlights the far-reaching countryside views beyond.
Porch
This handy porch space provides space for coats and shoes and benefits from glazing to the front and side.
Entrance Hall
Positioned centrally within the home, the entrance hall creates a practical and welcoming first impression. Fitted with two storage cupboards, one concealing the gas boiler, there is ample storage space for coats and shoes. The stairwell leads to the first floor from here.
Kitchen
The kitchen is a generous and practical space with extensive worktop areas and a range of freestanding cabinetry. Positioned to overlook the front garden and driveway, the room offers excellent potential for redesign or modernisation to create a contemporary family kitchen, if desired.
Lounge-Diner
Flooded with natural light from large windows, the room is made up of a dining and living space that offers a welcoming setting for both everyday meals and larger gatherings or family occasions. The room sits conveniently between the kitchen and living areas, enhancing the natural flow of the ground floor. There is ample space for a large dining set as well as a living area.
Conservatory
Spanning almost the whole width of the bungalow to the rear, this fantastic conservatory offers additional space for dining and lounging, as well as providing a front row seat to stunning, far-reaching views to the west, including sunsets all through the year. There are two doors to either side, one leading to an elevated patio area, and the other into the garden via a ramp.
Living Room
Generously proportioned and filled with natural light, the living room offers an inviting space for relaxation and entertaining. The space connects with the lounge-diner and the hall, plus windows to the rear aspect overlook the conservatory.
Bedroom One
Conveniently located on the ground floor, this generous double bedroom enjoys stunning countryside views to the rear aspect and offers ample space for freestanding or fitted bedroom furniture.
Bedroom Three
Also featuring a window to the front aspect with stunning views, this generous double bedroom offers ample space for bedroom furniture and also features a fireplace surround.
Bedroom Five
Also conveniently situated on the ground floor, this double bedroom features an obscure glazed window to the side aspect, overlooking the garage, and provides versatility to be utilised in a number of ways.
Bedroom Six
Flooded with natural light from the window to the side aspect, this double bedroom is the smallest of the six bedrooms but still provides ample space for bedroom furniture.
Ground Floor Bathroom
Servicing bedroom one and bedroom six, this family bathroom comprises a bath, a handbasin, and a WC, plus it benefits from an obscure glazed window to the front aspect.
Ground Floor Shower Room
Neutrally finished in a white tile wall surround with caricature features, this shower room comprises a WC, a hand basin, and a level access walk-in shower.
First Floor Landing
The stairwell from the entrance hall leads up to a landing space providing access to a further two bedrooms and a shower room.
Bedroom Two
Generously proportioned and flooded with natural light from the windows to the front and rear, this double bedroom offers an opportunity for development with potential for a large en-suite or walk-in wardrobe. The elevated position from the first floor offers even more expansive views from Culver Downs across the island.
Bedroom Four
Currently utilised as a living area, this double bedroom features an additional room, currently used as a bedroom, which could be utilised as an en-suite or walk in wardrobe. The views to the rear aspect are uninterrupted and the space offers the best seat in the house for watching the sun go down.
First Floor Shower Room
With an obscure glazed window to the front aspect, this spacious shower room comprises a shower cubicle, a WC, and a hand basin.
Garden
The garden surrounds the home and offers a blend of lawn, mature planting, and areas that could be further landscaped to create attractive outdoor living spaces, plus a couple of ponds. Positioned to enjoy open countryside views, the outdoor setting provides a peaceful backdrop throughout the seasons. A raised patio space makes the most of sunshine all through the day and offers a fabulous spot to enjoy the uninterrupted views. There is access around both sides of the house, and the garden continues up to the driveway at the front.
Parking and Garage
Generous gravelled parking areas to the front of the property allow parking for multiple vehicles, plus there is an additional space on the other side of the lane for a vehicle, if required. There is a garage to one side of the property, which provides further parking or storage.
Combining generous proportions with a highly adaptable layout, Yellowsands presents a rare opportunity to acquire a substantial detached home in an elevated countryside setting. While the property offers opportunity for modernisation, its scale, position, and flexible accommodation create exceptional potential for buyers seeking a long-term family home or peaceful rural retreat. An early viewing is highly recommended with the sole agent, Susan Payne Property.
Additional Details
Tenure: Freehold
Council Tax Band: D (approx. £2,480.05 pa – Isle of Wight Council 2025/2026)
Services: Mains water, drainage, gas, and electricity
Agent Notes:
The information provided about this property does not constitute or form part of an offer or contract, nor may it be regarded as representations. Images may have been enhanced or edited for illustrative purposes only. All interested parties must verify accuracy and your solicitor must verify tenure/lease information, fixtures and fittings and, where the property has been extended/converted, planning/building regulation consents. All dimensions are approximate and quoted for guidance only and their accuracy cannot be confirmed. Reference to appliances and/or services does not imply that they are necessarily in working order or fit for the purpose. Susan Payne Property Ltd. Company no. 10753879.
Viewing
Please contact us on 01983 566244 if you wish to arrange a viewing appointment for this property, or require further information.
Energy Performance Certificate
Click here to view the Energy Efficiency Rating and Environmental Impact Rating for this property.
Disclaimer
Susan Payne Property endeavour to maintain accurate depictions of properties in Virtual Tours, Floor Plans and descriptions, however, these are intended only as a guide and purchasers must satisfy themselves by personal inspection.
Features
- Substantial detached chalet bungalow
- Six bedrooms arranged across two floors
- Two reception rooms and three bathrooms
- Spacious and flexible accommodation
- Large conservatory with far-reaching views
- Countryside and coastal walks on the doorstep
- Garage and extensive driveway parking
- Elevated position with far-reaching rural views
- Opportunity for modernisation and offers exceptional potential
- Short distance from the village, amenities, and beaches
Share
Request aValuation
We understand that each of our vendors circumstances are as unique as the homes that we sell, which is why our bespoke, efficient, personal service, is always tailored to suit you and your individual requirements.

